Most na Wiśle
Most kolejowo- drogowy, zbudowany w latach 1876-79, składa się z 11 przęseł o łącznej długości 1143 metrów. Odległość między osiami filarów wynosiła
po 100 m, a światło przęseł po 97,3 m. Dźwigary miały pas górny paraboliczny, niezbieżny. W roku 1909 most wzmocniono dla dostosowania do zwiększonych norm obciążenia.
Most został wysadzony w 1939 roku, odbudowany przez Niemców, a w 1945 roku zniszczony ponownie. Zwalone do wody zostały wszystkie 11 przęseł. W latach 1947-51 most odbudowano.
Na obu przyczółkach most broniony był przez pary blokhauzów (wartowni) i stalowe bramy. Przy blokhauzach lewobrzeżnych umieszczono także stalową kratę.
Stan obecny:
Wszystkie cztery blokhauzy po obu stronach rzeki są zachowane.
|
![[Fragment mapy 2578 Graudenz]](images/gru019.gif) |
![[Fragment mapy WIG]](images/gru018.jpg) |
|
|
Fragment mapy 2578 Graudenz 1:25 000 z 1899r. |
Fragment mapy WIG 1:100 000 z 1935r. |
|
|
![[Plan mostu]](images/gru303.gif) |
|
|
Plan mostu wg Zeitschrift für Bauwesen 1882 |
|
|
![[Plan mostu]](images/gru304.gif) |
|
|
Plan lewobrzeżnego przyczółka wg Zeitschrift für Bauwesen 1882 |
|
|
![[Plan mostu]](images/gru305.gif) |
|
|
Plan prawobrzeżnego przyczółka wg Zeitschrift für Bauwesen 1882 |
|
|
![[Plan mostu]](images/gru307.gif) |
|
|
Plan lewobrzeżnych blokhauzów wg Zeitschrift für Bauwesen 1882 |
|
|
![[Plan mostu]](images/gru306.gif) |
|
|
Plan prawobrzeżnych blokhauzów wg Zeitschrift für Bauwesen 1882 |
|
|
![[Plan mostu]](images/gru308.gif) |
|
|
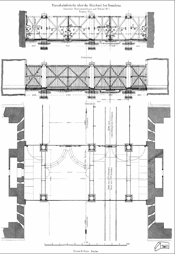
Krata stalowa wg Zeitschrift für Bauwesen 1882 |
|
|
![[Plan mostu]](images/gru309.gif) |
|
|
Brama stalowa wg Zeitschrift für Bauwesen 1882 |
|
|
![[Most od strony miasta]](images/gru001.jpg) |
|
|
Widok mostu od strony miasta |
|
|
![[Widok mostu z wzgórza zamkowego]](images/gru016.jpg) |
![[Widok mostu z wzgórza zamkowego]](images/gru002.jpg) |
|
|
Widok mostu z wzgórza zamkowego |
|
|
![[Widok mostu od spodu]](images/gru003.jpg) |
![[Widok jezdni]](images/gru004.jpg) |
|
|
Widok mostu od spodu |
Widok jezdni |
|
Prawy brzeg Wisły
|
![[Północny blokhauz]](images/gru006.jpg) |
![[Północny blokhauz]](images/gru009.jpg) |
|
|
Północny blokhauz (lewe zdjęcie z 2003r. przed wyburzeniem budynku zbudowanego na stropie) |
|
|
![[Północny blokhauz]](images/gru007.jpg) |
![[Północny blokhauz]](images/gru008.jpg) |
|
|
Północny blokhauz |
|
|
![[Północny blokhauz]](images/gru010.jpg) |
![[Północny blokhauz]](images/gru011.jpg) |
|
|
Północny blokhauz |
|
|
![[Południowy blokhauz]](images/gru012.jpg) |
![[Południowy blokhauz]](images/gru013.jpg) |
|
|
Południowy blokhauz (lewe zdjęcie z 2003r. przed wyburzeniem budynku zbudowanego na stropie) |
|
|
![[Południowy blokhauz]](images/gru015.jpg) |
![[Południowy blokhauz]](images/gru014.jpg) |
|
|
Południowy blokhauz |
|
Lewy brzeg Wisły
|
![[Lewy brzeg]](images/gru297.jpg) |
![[Lewy brzeg]](images/gru298.jpg) |
|
|
Most z przyczółkami od zachodu |
|
|
![[Lewy brzeg]](images/gru299.jpg) |
![[Lewy brzeg]](images/gru300.jpg) |
|
|
Północny blokhauz z widocznym otworem okiennym- strzelnicą |
|
|
![[Lewy brzeg]](images/gru301.jpg) |
![[Lewy brzeg]](images/gru302.jpg) |
|
|
Północny i południowy blokhauz |
|
Aktualizacja: 04.12.2011
Autor: hege22
|