Biblioteczka niemieckiego sapera


Instrukcja obsługi mechanicznej, obrotowej zapory drogowej


[zapora]

Załącznik 3 do O.K.H. Gen St d H In Fest (IIIb) Nr. 2200/37 Tajne z dnia 25.07.1937
Opis i instrukcja obsługi mechanicznej, obrotowej zapory drogowej do blokowania dróg
[Beschreibung und Bedienungsvorschrift zur mechanischen Drehschranke für Straßensperrung]

z:
a) ręcznym wyzwalaniem
b) zdalnym wyzwalaniem elektrycznym
c) zdalnym wyzwalaniem za pomocą linki (przewodu ciągnionego)

I. Opis zapory obrotowej
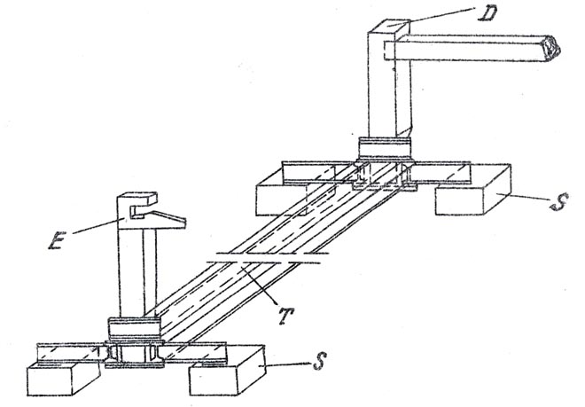
1.) Instalacja zapory składa się z:
słupa obrotowego D, sprężyny obrotowej F, poziomo obracającego się ramienia B (zamocowanego w słupie obrotowym) z zawieszeniem H, słupa wyzwalającego A, słupa oporowego E (z najazdową prowadnicą L).

[zapora]
Rysunek 1. (BAMA).

2.) Pozycja otwarta
W pozycji otwartej (pozycja podstawowa) ramię (B) wyposażone w zawieszenie (H) znajduje się równolegle do jezdni i jest na końcu unieruchomione ryglem (R) w słupie wyzwalającym (A).

3.) Obrót ramienia
Sprężyna obrotowa (F) zamontowana w słupie obrotowym (D) jest napięta w pozycji otwartej.
Gdy rygiel (R) w słupie wyzwalającym (A) zostanie zwolniony, sprężyna obrotowa (F) obraca ramię o 90° do pozycji zamknięcia.
Przy tym słup oporowy (E) za pomocą swojej prowadnicy najazdowej (L) unosi końcówkę ramienia i wyhamowuje jego ruch.
Możliwości zwolnienia rygla w słupie wyzwalającym opisane są w rozdziałach II-IV.
W zależności od tych rozwiązań, słup wyzwalający ma różną konstrukcję.

4.) Zablokowanie ramienia
Urządzenie chwytające, działające pod silnym naciskiem sprężyny, automatycznie przechwytuje końcówkę ramienia za prowadnicą najazdową (L) i samoczynnie ją blokuje.

5.) Podbudowa
Słup obrotowy (D) i słup oporowy (E) osadzone są w ruszcie nośnym (T) wykonanym z dwuteowników, który przebiega pod jezdnią i po obu stronach drogi jest zamocowany i przymocowany do dwóch betonowych cokołów (S).


[zapora]
Rysunek 2. (BAMA).

6.) Otwarcie ramienia
Aby przywrócić ramię do pozycji otwartej, należy otworzyć urządzenie chwytające przy słupie oporowym, odepchnąć ramię z powrotem i unieruchomić je w słupie wyzwalającym.
Szczegóły znajdują się w poniższych rozdziałach.

7.) Wymagane narzędzia pomocnicze
Potrzebne są:
- 1 klucz (1) (zob. Rysunek 3)
- 1 dźwignia pomocnicza z otworem trójkątnym (2) (zob. Rysunek 9)
- 1 dźwignia pomocnicza z okrągłą końcówką (3) (zob. Rysunek 10)
- 1 kłódka (4a)
Ponadto, w przypadku zdalnego wyzwalania elektrycznego:
- 1 klucz do zapalnika żarowego (5)
- 2 zapalniki żarowe
- 1 klucz (25)
- 1 mała dźwignia pomocnicza (26)
- 1 dodatkowa kłódka (4b)
Narzędzia te są dostarczane przez producenta.

II. Zamknięcie zapory obrotowej ręcznie
(Uwaga: Także zapory skonstruowane do elektrycznego lub mechanicznego (linkowego) zdalnego wyzwalania mogą być uruchamiane ręcznie.)
8.) Odblokowanie ramienia przy słupie wyzwalającym (zob. Rysunek 3)
a) Zdjąć kłódkę (4a)
b) Podnieść klapkę zamka (6)
c) Włożyć klucz (1) i obrócić go jeden raz dookoła
(Klucz nie daje się teraz wyjąć)
d) Rękojeść (7) wyciągnąć aż do oporu (widoczna będzie czerwona oznaczenie)

[zapora]
Rysunek 3. (BAMA).


[zapora]
Rysunek 4. (BAMA).

9.) Wyzwolenie ramienia
(dotyczy zapór przeznaczonych wyłącznie do ręcznego wyzwalania) (Rysunek 4)
a) Podnieść dźwignię oporową (8) do góry
b) Energicznie wyciągnąć rękojeść (7) aż do drugiego oporu
c) Końcówka ramienia zostaje zwolniona, sprężyna obrotowa (F) (zob. Rysunek 1) zamyka zaporę, która zostaje automatycznie przechwycona i zaryglowana w słupie oporowym
Droga jest zablokowana!
d) Sprawdzić, czy końcówka ramienia została prawidłowo zaryglowana w słupie oporowym

[zapora]
Rysunek 5a-c. Elektryczne wyzwalanie: a) przygotowany słup wyzwalający do elektrycznego wyzwolenia, b) elektryczne wyzwolenie, c) mechanizm elektrycznego wyzwolenia. (BAMA).

III. Zamknięcie zapory drutowej przez elektryczne wyzwolenie
10.) Instalacja elektrycznego zdalnego wyzwalania (Rysunki 5a-c)
Od punktu wyzwalania zapłonowego poprowadzone są dwa przewody elektryczne - mogą być ułożone w sposób pokojowy (stały) lub jako instalacja odkryta - do słupa wyzwalającego (A) (zob. Rysunek 5a).
Na miejscu przewody są podłączone do dwóch zacisków kablowych.
Zaciski te stają się dostępne po zdjęciu osłony blaszanej.
Prąd elektryczny pobudza magnes (M), który przyciąga dźwignię (H). W ten sposób zostaje zwolniona dźwignia kątowa (W), na którą działa sprężyna dociskowa (Dr) skierowana w dół.
Rozszerzająca się w dół sprężyna dociskowa działa za pośrednictwem drugiej dźwigni kątowej, cofając rygiel elektryczny - w ten sposób ramię zapory zostaje zwolnione.
Przy ręcznym wyzwalaniu, przycisk naciskowy (10), zwolniony przez klucz (25), naciska na górne ramię dźwigni (H), co powoduje zwolnienie dźwigni kątowej (W).

11.) Odblokowanie ramienia (zob. Rysunek 6)
a) Usunąć kłódkę (4a)
b) Podnieść klapkę zamka (5)
c) Włożyć klucz (1) i obrócić go jeden raz (klucza nie można teraz wyjąć)

[zapora]
Rysunek 6. (BAMA).

d) Wyciągnąć uchwyt (7) aż do oporu
(pojawi się czerwone oznaczenie)
e) Ponownie przekręcić klucz (1) do pozycji zamkniętej i wyjąć go.

12.) Zamknięcie odblokowanego ramienia przez zdalne wyzwolenie elektryczne
a) Ze słupa wyzwalającego do punktu wyzwalania prowadzą dwa kable, które mogą być ułożone w sposób stały (czas pokoju) lub prowizorycznie na powierzchni (rysunek 5a).
b) Podłączyć oba kable do urządzenia zapłonowego żarowego.
c) Poprzez "zainicjowanie zapłonu" zapłonowego urządzenia żarowego zamknąć zaporę.
d) Końcówka ramienia zostaje zwolniona, sprężyna obrotowa (F) zamyka ramię zapory, które automatycznie zatrzaskuje się i rygluje w słupie oporowym.
e) W miarę możliwości zaleca się sprawdzenie, czy końcówka ramienia została prawidłowo zaryglowana w słupie oporowym.

[zapora]
Rysunek 7. (BAMA).

13.) Zamknięcie odblokowanego ramienia przez ręczne wyzwolenie (Rysunek 7).
a) Otworzyć i zdjąć dolną kłódkę (4b),
b) Włożyć klucz (25) do dolnej części słupa wyzwalającego,
c) Otworzyć zamek,
d) Mocno wcisnąć przycisk (10) aż do oporu,
e) Końcówka ramienia zostaje uwolniona, sprężyna obrotowa (F) zamyka ramię zapory, które automatycznie zostaje pochwycone i zaryglowane w słupie oporowym.
Droga jest zablokowana!
f) Wyjąć klucz (25),
g) Sprawdzić, czy końcówka ramienia została prawidłowo zaryglowana w słupie oporowym.

14.) Źródła zasilania do elektrycznego zdalnego wyzwalania
Elektryczne zdalne wyzwalanie zapór obrotowych odbywa się zazwyczaj za pomocą urządzenia zapłonowego żarowego.
Jeśli taki nie jest dostępny, można użyć dowolnego źródła prądu stałego (ale nie prądu zmiennego), którego napięcie wynosi co najmniej 20 woltów. Przykład: 7 baterii latarkowych po ok. 3 wolty, połączonych szeregowo.

IV. Zamknięcie zapory obrotowej za pomocą linki (przewodu)
15.) Możliwa odległość dla wyzwalania linkowego
Zapora może być wyzwalana linką z odległości do 300 metrów.

16.) Instalacja linkowa
Do wyzwalania zapory za pomocą naciągu linki przewidziano następujące urządzenie:
a) W słupie wyzwalającym (A) zamontowane jest urządzenie do wyzwalania linkowego, którego uruchomienie powoduje zwolnienie ramienia (B) ze słupa wyzwalającego. (Rysunek 8)
b) Od mechanizmu wyzwalającego linka (Z) prowadzona jest w zagłębionych rurach szczelinowych do punktu wyzwalania, gdzie należy zamontować słupek wyzwalający. (Rysunek 8)

[zapora]
Rysunek 8. (BAMA).

17.) Odblokowanie ramienia i słupa wyzwalającego (Rysunek 3)
a) Podnieść klapkę zamka (6)
b) Włożyć klucz (1) i obrócić go jeden raz (klucza nie można teraz wyjąć)
c) Wyciągnąć uchwyt (7) aż do oporu (pojawi się czerwone oznaczenie)

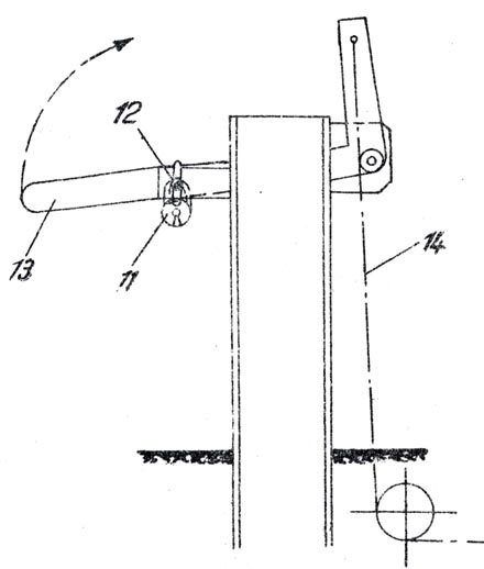
18.) Odblokowanie mechanizmu linkowego i słupa wyzwalającego
Kłódka (11) na słupku wyzwalającym zostaje odblokowana i zdjęta (Rysunek 9).

[zapora]
Rysunek 9. (BAMA).

19.) Wyzwolenie ramienia: (Rysunki 8 i 9)
Na słupku wyzwalającym [Auslösesäule] wyciąga się bolec blokujący (12) aż do oporu, a następnie podnosi się dźwignię (13) (w kierunku wskazanym strzałką).
W ten sposób zwalniany jest drut napinający (14).
Ponieważ na jego końcu, przy słupie wyzwalającym [Auslösepfosten], działa sprężyna napinająca (15) urządzenia wyzwalającego, sprężyna ta porusza element prowadzący (16).
Element prowadzący połączony jest za pomocą linki z ryglem (17), powodując jego odciągnięcie.
Końcówka ramienia zostaje uwolniona, a sprężyna obrotowa (F) zamyka ramię zapory, które automatycznie zaczepia się i rygluje w słupie oporowym [Einfallpfosten].
Dźwignia (13) zostaje odłożona do pozycji początkowej, a bolec (12) wsunięty z powrotem.
Dźwignię (13) należy ponownie zabezpieczyć kłódką (11).

V. Otwarcie zapory obrotowej
20.) Usunięcie blokady w słupie oporowym (Rysunek 10)
Dźwignię pomocniczą (2) należy osadzić na trójkątnej końcówce (18) po podniesieniu klapki ochronnej od strony wewnętrznej jezdni i obrócić w kierunku wskazanym strzałką, aż zatrzask (19) oprze się o bolec (20) na dźwigni, cofając w ten sposób element ryglujący urządzenia przechwytującego (21).

[zapora]
Rysunek 10. (BAMA).

21.) Podnoszenie ramienia (zapory) (rysunek 11)
a) Dźwignię pomocniczą (3) założyć na bolec (22) po stronie wewnętrznej jezdni.
Unieść ramię zapory do pozycji oznaczonej linią przerywaną.
b) Zdjąć dźwignię pomocniczą (3).
c) Ostrożnie unieść zatrzask (19), przy tym dobrze przytrzymać dźwignię pomocniczą (2) od dołu.
d) Popuścić i zdjąć dźwignię pomocniczą (2), pozwalając klapce ochronnej swobodnie opaść.

[zapora]
Rysunek 11. (BAMA).

22.) Otwarcie zapory (Rysunki 11a i b)
Ująć ramię zapory za końcówkę i obrócić je do pozycji otwartej.
a) Mocno wsunąć końcówkę ramienia w prowadnicę (23) przy słupku wyzwalającym (A).
b) W zaporach z ręcznym lub linkowym wyzwalaniem elastycznie odchylany rygiel (24) przechwytuje końcówkę ramienia i utrzymuje ją w tej pozycji. (Rysunek 11a)
c) W zaporach z wyzwalaniem elektrycznym, po wciśnięciu ramienia, należy je utrzymać w tej pozycji.
Małą dźwignię pomocniczą (26) należy wprowadzić od góry do słupa wyzwalającego od strony ulicy położonej niżej (po spadku). Dzięki niej rygiel (24) zostaje dociśnięty do ramienia, które w ten sposób zostaje unieruchomione.

[zapora]
Rysunek 11 a-b. (BAMA).

23.) Zabezpieczenie ramienia
Uchwyt (7) mocno wcisnąć aż do oporu (czerwona oznaczenie zniknie) po wcześniejszym zdjęciu kłódki i ponownym odblokowaniu górnej części w przypadku wyzwalania elektrycznego.
Zamknąć zamkiem za pomocą klucza (1), wyjąć klucz, pozwolić, aby klapka zamka opadła.
(Zgodnie z Rysunkami 3-5) i zabezpieczyć kłódką (4).
VI. Dane do zamówienia
24.) Długość zapory
Długość ramienia zapory uzależniona jest od szerokości użytkowej jezdni.
Środek podstawy obrotowej i środek słupa oporowego znajdują się 0,8 m poza użytkową szerokością jezdni.
Przy składaniu zamówienia należy podać wymiar użytkowej szerokości jezdni oraz ustalić, czy po obu stronach jezdni istnieje wystarczająca ilość miejsca na ustawienie betonowych cokołów.

25.) Oznaczenie zamówienia
Zapory należy oznaczyć przy zamówieniu w następujący sposób:
- Zapora obrotowa z: ręcznym wyzwalaniem, zawieszeniem kratowym i blokadą ramienia
- Zapora obrotowa z: elektrycznym zdalnym wyzwalaniem, zawieszeniem kratowym i blokadą ramienia
- Zapora obrotowa z: wyzwalaniem linkowym, zawieszeniem kratowym i blokadą ramienia

VVII. Konserwacja zapory obrotowej
26.) Miejsca łożyskowania zapory należy smarować co dwa miesiące za pomocą smarownicy ciśnieniowej, po uprzednim dokładnym usunięciu stwardniałych resztek smaru, kurzu itp.
W celu nasmarowania wewnętrznych części słupa wyzwalającego, należy odkręcić sześciokątny korek znajdujący się u góry z tyłu słupa.
Ponadto należy zdjąć osłonę dużej sprężyny obrotowej i oczyścić sprężynę z kurzu.
Punkty smarowania pokazano na Rysunku 12.

[zapora]
Rysunek 12. (BAMA).



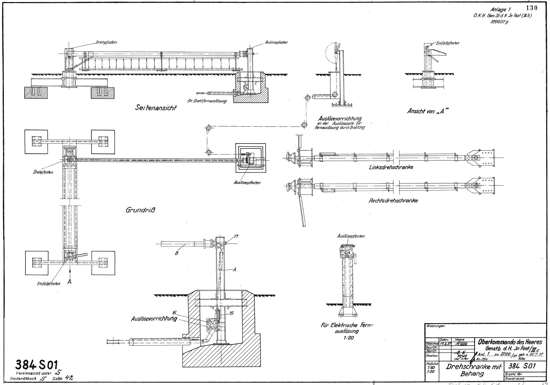
[mapa]
Drehschranke mit Behang 384S01. (BAMA).Powiększ rysunek

Aktualizacja: 21.05.2025

Autor: hege22

 |   Do góry  |   Poziom wyżej  |