Powiśle, Górne Prusy, Pojezierze Iławskie


Obrona zachodniej części Prus Wschodnich 1920-39


Zapory drogowe


Bramy - kraty graniczne

Poniższe zdjęcia właściwie nie pasują do tematu, ale są pokłosiem mojego konika, poszukiwania pruskich krat fortecznych użytych wtórnie do grodzenia obiektów cywilnych. Kilkanaście lat temu na jednym z forów lokalnych jeden z użytkowników zamieścił kilka zdjęć z wycieczki po Powiślu z lat 30. XX w. Jedno z nich było zidentyfikowane jako granica w Białej Górze. Wtedy myślałem, że ta brama była pozyskana z jakiś fortyfikacji, ale po wycieczkach po elektrowniach na Raduni, gdzie obiekty hydrotechniczne z czasów pruskich i WMG chronione są podobnymi kratami, musiałem zmienić zdanie. Podobne zadania, dają podobną formę. Poniżej zdjęcia bram granicznych na postawionej na wschodnim krańcu śluzy w Białej Górze, na znajdującym się 3 km na północ nie istniejącym już moście Jagow Brücke oraz kładce w Malborku.

[śluza]
Granica Niemcy - Wolne Miasto Gdańsk. Krata graniczna na nowej śluzie w Białej Górze i prawdopodobnie z tyłu budynek strażnicy granicznej po stronie gdańskiej. (Muzeum Pomorza Cyfrowe Muzeum Dziedzictwa Kulturowego Województwa Pomorskiego -> muzeumpomorza.pl).

[śluza]
Granica Niemcy - Wolne Miasto Gdańsk. Krata graniczna na nowej śluzie w Białej Górze. Chłopak siedzi na słupku granicznym F003. (Fotopolska -> fotopolska.eu).

[śluza]
Granica Niemcy - Wolne Miasto Gdańsk. Krata graniczna na nowej śluzie w Białej Górze znajdująca się już na terenie WMG. (Bilderarchiv Ostpreußen -> bildarchiv-ostpreussen.deu).

[śluza]
Granica Niemcy - Wolne Miasto Gdańsk. Zollamt po stronie niemieckiej, krata graniczna na nowej śluzie w Białej Górze i prawdopodobnie z tyłu budynek strażnicy granicznej po stronie gdańskiej. (Fotopolska -> fotopolska.eu).

[śluza]
Dziś.

[śluza]
Zdjęcie z 1929 roku z planowanym umieszczeniem szlabanów koło niemieckiego Zollamtu. (BAMA).

[śluza]
Dziś.

[most]
Granica Niemcy - Wolne Miasto Gdańsk. Krata graniczna na moście Jagow Brücke na północ od Białej Góry. (tomek.strony.ug.edu.pl).

[krata]
[krata]
Granica Niemcy - Wolne Miasto Gdańsk. Krata graniczna na kładce pieszej koło zamku w Malborku. (fotopolska.eu).

Zdjęcie kraty na kładce w kierunku Kałdowa można zobaczyć -> alamy.com

Zachował się rysunek bramy z jakiegoś mostu na Nogacie (opis dla mnie nie czytelny). Nie znalazłem zdjęcia podobnej, a że mostów granicznych na Nogacie było chyba tylko 5, myślę, że to niezrealizowany projekt. Pozostają jeszcze trzy śluzy na Nogacie (Szonowo, Rakowiec, Michałowo) obok których przebiegała granica Niemcy - Wolne Miasto Gdańsk, ale brak tu czytelnego, dostępnego materiału ilustracyjnego.

[krata]
Niezrealizowany (?) projekt bramy. (BAMA). Powiększ rysunek

Szlabany 1928-30

W 1928 roku planowano zabezpieczyć przejścia graniczne w całych Niemczech szlabanami odpornymi na taranowanie przez pojazdy kołowe. W zachodniej części Prus Wschodnich zainstalowano 4 takie urządzenia. Pomysły o instalacji następnych zostały zarzucone z powodu braku funduszy.

Odpis.
Wrocław, 5, dnia 22.09.1927.
Należący do umowy z 12.03.1928.
Vereinigte Bauunternehmung Breslau A.G.
ul. Nowa Świdnicka [Neue Schweidnitzerstr.] 6
Ściśle Tajne
Oferta dotycząca wykonania szlabanów blokujących dla przejść granicznych.
a) Prace wstępne: Bezpośrednie negocjacje z właściwymi urzędami, ustalenie miejsca i lokalizacji, gdzie ma stanąć szlaban blokujący, pomiar terenu w celu zaprojektowania mechanizmu napędowego, sporządzenie planów sytuacyjnych, koszty podróży.
b) Dostawa szlabanu blokującego, składającego się z konstrukcji drucianej z mocnego profilu stalowego, mechanizmu napędowego na słupku do przenoszenia ruchu linki na ramię szlabanu, z możliwością utrzymania go w pozycji otwartej jak i zamkniętej, z odchyleniem na słupku z łożyskowaniem i skrzynkami ochronnymi, z podporami zwrotnymi i materiałem przewodowym, z bardzo mocnym zderzakiem i blokadą dla ramienia szlabanu ze wzmocnieniem, ze specjalnym zamknięciem przeciwko podnoszeniu szlabanu, z ramieniem szlabanu wykonanym z jednolitej bezszwowej grubościennej rury stalowej ze specjalnie umocowaną wewnątrz liną stalową o grubości 48 mm, z przynależnymi płytami obciążeniowymi do równoważenia ciężaru, z mechanizmem korbowym do instalacji w budce strażniczej z podziemnym wyprowadzeniem przewodu na zewnątrz, z przewodem łączącym między mechanizmem korbowym a napędem na słupku, z urządzeniem napinającym wraz z kanałem osłonowym z blachy pokrytej gorącym smołowaniem, gotowym do ustawienia i użytkowania, elementy szlabanu pokryte jednokrotną warstwą gruntu olejnego, wraz z zabetonowaniem całej instalacji.
c) Koszty. Przy udzieleniu zamówienia:
1.) za 1 szlaban blokujący 4.500,00 RM.
2.) za 10 szlabanów blokujących za sztukę 4.350,00 RM.
3.) za 20 szlabanów blokujących za sztukę 4.250,00 RM.
4.) za 30 szlabanów blokujących za sztukę 4.150,00 RM.
5.) za 40 szlabanów blokujących za sztukę 4.100,00 RM.
6.) za 50 szlabanów blokujących za sztukę 4.050,00 RM.
7.) za 60 szlabanów blokujących za sztukę 4.000,00 RM.
8.) za 61-100 szlabanów blokujących za sztukę 3.950,00 RM.
Wrocław, dnia 22 września 1927
Vereinigte Bauunternehmung Breslau A.G.
podpisano Kreuz.


Królewiec, dnia 22.10.27.
Wehrkreiskommando I. Abt. Pi Nr 523/27 Tajne.
Odniesienie: Nr 480/27 Tajne. z 3.10.27, Nr 512/27 Tajne z 18.10.27.
Dotyczy: Zapory drogowej (szlabanu).
Do Festungskommandantur Malbork, Festungskommandantur Giżycko, Festungskommandantur, InFü I, Abt. Pi, Angerappstellung [Wydz. Saperów, Pozycja Węgorapy]
W nawiązaniu do pisma Abt. Pi Nr 480/27 Tajne przesyła się po 1 egz. opisu i 9 fotografii do zachowania.
Z ramienia Wehrkreiskommando I. Szef Sztabu.

Tu dopisek pismem odręcznym:
Festungskommandantur Malbork Tagebuch Nr 149/27 Tajne
Do: Pierwszy oficer ds. planowania budowy Klingbeil - z poleceniem dla Festungskommandantur Giżycko.
W rozkazie komendantury przy rozdziale środków z czerwca 1927 r. dla Festungskommandantur Malbork należy uwzględnić fundusze na 4 zapory drogowe (szlabany) (13-15 tysięcy RM). W sprawie ich lokalizacji należy uzyskać zgodę na wykorzystanie przeznaczonych środków.

I załącznik do pisma Nr 523/27 (ilustracji brak).
Opis zapory drogowej.
Zapora ma formę i wygląd typowych szlabanów kolejowych (patrz zdjęcie 1). W celu prawidłowej, terminowej i zabezpieczonej obsługi, nadzoru i konserwacji należy ją instalować przy budynku (budynki straży granicznej). Jej konstrukcja umożliwia obsługę (podnoszenie i opuszczanie) z wnętrza budynku. Zapora składa się z mocno wykonanego, silnie wzmocnionego, osadzonego w betonowym cokole kozła obrotowego (patrz zdjęcie 2, po lewej), odpowiednio ukształtowanego kozła odbojowego i ryglującego (patrz zdjęcie 2, po prawej) oraz odpowiadającego szerokości drogi długiego ramienia wykonanego z bezszwowej stalowej rury, która mieści stalową linę o grubości 42 mm.
Poprzez przekładnię linową i dźwigniową obrotowo osadzony w koźle obrotowym drąg połączony jest z tarczą stopniową, która jest uruchamiana przez zainstalowany w budynku mechanizm korbowy, co powoduje otwieranie (podnoszenie) i zamykanie (opuszczanie) ramienia.
Przy zamykaniu szlabanu ramię układa się swoją końcówką (górnym końcem) w widełkowato ukształtowanym koźle odbojowym i ryglującym. Mocny, przesuwany nad częścią uderzeniową ramienia, zamykany rygiel stalowy (patrz zdjęcie 5) zapobiega nieuprawnionemu podnoszeniu ramienia. Otwarcie szlabanu jest możliwe tylko po otwarciu zamka zabezpieczającego, wycofaniu rygla stalowego i przekręceniu korby w budynku.
Przy gwałtownym uderzeniu ciężkich pojazdów w szlaban stalowa rura ramienia ulega wprawdzie deformacji (patrz zdjęcie 3), ale nie zostaje istotnie zniszczona; przede wszystkim jednak lina stalowa ułożona w niej z przewieszeniem pozostaje nieuszkodzona, ponieważ może ustąpić. Osiąga się to dzięki specjalnej konstrukcji części uderzeniowej ramienia: składa się ona z osobnego kawałka rury stalowej, która kończy się mocną i szeroką płytą żelazną; w tej części końcowej ramienia lina stalowa jest zalana ołowiem w stożkowym (zwężającym się w kierunku drogi) otworze.
Przy uderzeniu pojazdu końcówka ramienia zostaje wprawdzie oderwana (jak widać na zdjęciu 5), ale końcówka liny stalowej zostaje tylko mocniej wciągnięta w stożkowy otwór.
Zdjęcia 3, 4, 7 i 8 pokazują wytrzymałość zapory przy najechaniu wagonu kolejowego o masie 10 t z prędkością 30 km/h.


Odpis.
Wrocław, dnia 3.01.1928.
Festungskommandantur Wrocław Abt. Pi. Nr. 3/28 Ściśle Tajne, Abt. I Nr. 4/28 Ściśle Tajne.
Odnośnik.: tamtejszego Stopi Nr. 675/27 Tajne.
Dotyczy: Zapory drogowe.
DDo Wehrkreiskommando I (Stopi) Królewiec.
Przez kuriera.
Taktyczne rozmieszczenie szlabanów drogowych musi ustąpić ze względu na "maskowanie" (szlabany celne). Gdy tylko szlaban zostanie zbudowany dalej od urzędu celnego, natychmiast ujawnia się jego wojskowa wartość, a "maskowanie" staje się bezprzedmiotowe. Z tego powodu w obszarze komendantury wszystkie szlabany są ustawione blisko urzędów celnych i są obsługiwane z nich; na drogach bez urzędu celnego nie ustawiono żadnego szlabanu. Omijanie bokami dróg jest uniemożliwione przez poszerzanie i pogłębianie rowów przydrożnych. Najczęściej objechanie uniemożliwia bliskość domów. Z upoważnienia podpisano Königsdorfer. Pułkownik.

Królewiec, dnia 7.01.1928. 1. Division. (Wehrkreiskommando I) Abt. Stopi Nr. 14/28 Ściśle Tajne
Do Festungskommandantur Malbork i Giżycko.
Powyższy odpis przesyła się w uzupełnieniu do Stopi Nr. 1/28 Tajne z dnia 4.1.28 z prośbą o uwzględnienie.
Z ramienia Dowództwa Okręgu Wojskowego. Szef Sztabu. [podpis]

Na początku stycznia 1930 roku dyrektor filmy Vereinigte Bauunternehmung Breslau A.G. inżynier Theo Krauz dokonał wizytacji czterech miejsc wybranych do instalacji szlabanów na zachodzie Prus Wschodnich: Pastwa (Gr. Weide), Gardeja (Garnseedorf), Biskupiczki (Bischdorf) i Rodzone (Rodzonne, później Rosen). Dokonał on pomiarów i wykonał projekty instalacji szlabanów, ten dla Gardeji publikuję poniżej.

Malbork, 10.01.1928.
Festungskommandantur Malbork Tgb. Nr. 19/28 Ściśle Tajne.
1 załącznik
Do 1.Division, Abt. Stopi.
Odniesienie: 1.Division, Abt. Stopi Nr 675/27 Tajne. z 29.12.27, 1.Division, Abt. Stopi 14/28 Ściśle Tajne. z 7.1.28.
Dotyczy: Zapór drogowych.
9-go bieżącego miesiąca odbyło się ostateczne ustalenie miejsc montażu 4 zapór drogowych (szlabanów) zleconych dla Komendantury Malbork. W rozpoznaniu uczestniczyli: Komendant z 2 towarzyszami, Kierownik Głównego Urzędu Celnego Kwidzyn (Radca Celny Bigusch), oraz inżynier Kreuz, Dyrektor firmy Vereinigte Bauunternehmung Breslau A.G.
Przy wyborze miejsc montażu kierowano się podkreślonym w ostatnim zarządzeniu punktem widzenia, według którego maskowanie powinno być priorytetem i dlatego szlabany powinny być montowane w bezpośrednim sąsiedztwie granicznych budynków celnych.
W związku z tym zrezygnowano z części pierwotnie przewidzianych miejsc i ostatecznie ustalono następujące 4 punkty:
1.) Urząd Celny Pastwa (8 km na północny-północny zachód od Kwidzyna)
2.) Urząd Celny Gardeja (15 km na południe od Kwidzyna)
3.) Urząd Celny Biskupiczki (7 km na południowy zachód od Kisielice)
4.) Urząd Celny Rodzone (10 km na południowy wschód od Iławy)
We wszystkich 4 urzędach celnych zapora drogowa ma zostać zamontowana w miejsce istniejących szlabanów, przy czym winda ma zostać umieszczona w biurze służbowym odpowiedniego kierownika urzędu. Radca celny wyraził zgodę na montaż. Kierownicy urzędów zostali poinstruowani i pouczeni o zachowaniu tajemnicy.
Pan Dyrektor Kreuz przeprowadził na miejscu pomiary niezbędne do produkcji szlabanów.
Znaczenie wojskowe rozpoznanych miejsc można określić jako korzystne, ponieważ we wszystkich 4 przypadkach pojazdy pancerne (z napędem kołowym) nie będą mogły ominąć zapór przez teren po bokach, gdyż po obu stronach znajdują się rowy, zbocza lub ogrodzenia, które stanowią przeszkody.
Przedmiotowe drogi są drogami powiatowymi (1 i 2 powiat kwidzyński, 3 i 4 powiat suski). Przed montażem szlabanów należałoby zatem skontaktować się z odpowiednimi starostwami w sprawie wykonania cokołów betonowych i przycięcia niektórych gałęzi drzew przydrożnych.
Załącznik: Mapa 1:100 000 z zaznaczeniem 4 rozpoznanych miejsc.
Komendant: [podpis] Podpułkownik


Malbork, dnia 8.3.28.
Festungskommandantur Malbork Tgb. Nr. 326/28 Pi Tajne.
Do Pana Radcy Celnego Bignusch lub Zastępcy - Urząd Celny Kwidzyn
Szanowny Panie Radco Celny!
W załączeniu przesyłam Panu 4 plany sytuacyjne itd. dotyczące budowy nowych szlabanów celnych, które zostały mi przesłane przez Vereinigte Bauunternehmung Breslau A.G. Proszę teraz o przekazanie krótkiej informacji z wybranego miejsca, w interesie zachowania tajemnicy. Zależy mi na tym, ponieważ powiadomienie nie nastąpi w formie pisemnej. Być może wystarczy krótka informacja, że podpory i punkty oparcia szlabanów zostaną wykonane z betonu i w związku z tym nawierzchnia drogi będzie wykorzystywana w niewielkim zakresie.
Proszę o zwrot załączonych planów po wykorzystaniu.
Z wyrazami szacunku
4 załączniki
[podpis] Oberst
Dopisek ołówkiem: 4 załączniki otrzymano z powrotem w dniu 19.3.28 za pośrednictwem Pana Sekretarza Celnego Weiß


Królewiec, dnia 17.3.28.
Wehrkreiskommando I. Abt. Stopi Nr. 171/28. Ściśle Tajne.
Dotyczy: Plany sytuacyjne dla zapór drogowych.
Do Festungskommandantur Malbork, Festungskommandantur Giżycko
Dyrektor Krenz, z zarządu Vereinigte Bauunternehmung Breslau A.G. przesłał tutaj sporządzone na podstawie ustaleń lokalnych plany sytuacyjne dla zapór drogowych.
Z tego 20 jest przewidzianych w obszarze Festungskommandantur Giżycko, 4 w obszarze Festungskommandantur Malbork.
Z pisma nie wynika, czy plany sytuacyjne są przeznaczone do użytku Wehrkreiskommando I. czy do rozdzielenia między komendantury twierdz.
W związku z tym prosi się o informację, czy do komendantur twierdz wpłynęły również egzemplarze planów sytuacyjnych, czy też konieczne jest rozdzielenie przesłanych tutaj między placówki służbowe.
Ze strony Wehrkreiskommando I. Szef Sztabu.


Wyjaśnienia do projektu szlabanu na przejściu granicznym w Gardeji.
Urząd Celny: Gardeja Powiat Kwidzyn (Prusy Zachodnie)
Najbliższa stacja kolejowa: Gardeja (linia kolejowa Malbork - Kwidzyn - Gardeja)
Rampa przeładunkowa jest dostępna.
Odległość do stacji kolejowej: 2,0 km. - Szosa -
Konstrukcja budynku celnego: Murowana.
Pod pomieszczeniem służbowym jest piwnica.
Pokrycie murów: Pustaki cementowe 0,38 m.
Przepust rurowy o średnicy 0,15 m .
Rodzaj gruntu: Przed budynkiem celnym glina.
Długość nowego szlabanu między podporami po obu stronach 8,80 m.
Lokalizacja nowego szlabanu: Dokładnie w miejscu starego szlabanu.
Lokalizacja wciągarki: W południowo-zachodnim rogu pomieszczenia służbowego.
Miejsce na beton pod fundamenty jest dostępne.
Przybliżona skala 1:250


[szlaban]
Granica Polska - Niemcy. Projekt szlabanu na przejściu granicznym w Gardeji. (BAMA).

Wrocław, dnia.31.03.1928.
Festungskommandantur Wrocław Abt. Pi. Nr 193/28 Tajne Abt.I Nr 205/28 Ściśle Tajne.
Dotyczy: Zapór drogowych.
Do Festungskommandantur Malbork przez Wehrkreiskommando I. Królewiec.
W załączeniu przesyła się odpis wraz z rysunkiem umowy zawartej ze Zjednoczonym Przedsiębiorstwem Budowlanym Wrocław S.A. [Vereinigten Bauunternehmung Breslau A.G.] dotyczącej ustawienia zapór drogowych. Montaż rozpocznie się wkrótce i zostanie przeprowadzony w miesiącu kwietniu - maju.
Załączniki: 2+1
Komendant
von Taysen Pułkownik

Odpis.
Ściśle Tajne.
Pomiędzy Skarbem Państwa Rzeszy (Wojskowym), reprezentowanym przez Festungskommandantur Wrocław a Vereinigten Bauunternehmung Breslau A.G. zostaje zawarta następująca Umowa:

§ 1 Firma podejmuje się dostawy i budowy 48 szlabanów blokujących w miejscach lub punktach ustalonych z lokalnymi komendanturami na obszarze Okręgów Wojskowych I, II, III i IV.
§ 2 Wykonanie szlabanów ma nastąpić zgodnie z załączonym do umowy rysunkiem Z.7832 i dołączoną ofertą firmy z dnia 22.9.27.
§ 3 Prace należy rozpocząć niezwłocznie i zamówić niezbędne elementy konstrukcji stalowych, tak aby odbiór ostatnich szlabanów mógł nastąpić najpóźniej do 1.5.28.
§ 4 Komendantura Twierdzy zastrzega sobie prawo do zlecenia badania dostarczanych elementów stalowych, lin itp. przed ich odbiorem na koszt firmy pod względem jakości materiału oraz jego wytrzymałości na rozciąganie i ściskanie.
§ 5 Koszty wynoszą zgodnie z wyżej wymienioną i załączoną ofertą, rozdział c 5 z dnia 22.9.27, 4 100,-- RM za szlaban. W tej cenie zawarte są również wszelkie prace projektowe wykonywane przez firmę - koszty podróży, transportu itp.
§ 6 Firma otrzyma płatność zaliczkową na część udokumentowanych wydatków gotówkowych powstałych w wyniku zamówień, o ile kwota na ten cel jest dostępna dla komendantury. Ponadto firma jest zobowiązana do samodzielnego pozyskania niezbędnych kwot, bez powodowania kosztów dla komendantury. Dalsze płatności zaliczkowe firma otrzyma w ramach udokumentowanych wykonanych prac.
§ 7 Ewentualne koszty opłat skarbowych ponosi firma.
§ 8 Umowa zostaje sporządzona w dwóch egzemplarzach. Kopię otrzymuje firma. Wchodzi ona w życie po zatwierdzeniu przez Dowództwo Okręgu Wojskowego III w Berlinie.

Wrocław, dnia 12.03.1928.
Za Festungskommandantur Wrocław: Komendant w zast. podpisano Königsdorfer Pułkownik i Oficer Saperów Twierdzy.
Za Vereinigten Bauunternehmung Breslau A.G. S.A. podpisano Kreuz.
Zatwierdzono: Berlin, dnia 21 marca 1928 Wehrkreiskommando III. w zast. podpisano Bohnstedt.


[szlaban]
Szlaban firmy Vereinigten Bauunternehmung Breslau A.G.. (BAMA). Powiększ rysunek

Vereinigte Bauunternehmung Breslau A.G. Hoch- und Tiefbau
Wrocław V, ul, Nowa Świdnicka 6.
Tajne.
Ku.We. 29.05.1928.
Do Głównego Urzędu Celnego [Hauptzollamt] Marienwerder, do rąk Pana Radcy Celnego Bigusch, Kwidzyn/Prusy Zachodnie
Dotyczy: Szlabanów celnych nr 13 do 16.
Z całym szacunkiem informujemy, że szlabany celne Nr 13 Paastwa, Nr 14 Gardeja, Nr 15 Biskupiczki, Nr 16 Rodzone
dotarły na place budowy i w najbliższych dniach rozpocznie się ich montaż.
Szlabany nr 13 i 14 zostaną zainstalowane przez firmę budowlaną [Baugeschäft] Eugen Dümler, Gardeja,
szlaban nr 15 przez firmę budowlaną Max Sternberg, Kisielice
szlaban nr 16 przez firmę budowlaną Robert Klein, Iława
pod nadzorem i kierownictwem naszego mistrza montażowego i naszego brygadzisty.
O zakończeniu prac powiadomimy Państwa niezwłocznie.
Z wyrazami szacunku [podpis]


dnia 25.06.1928.
Festungskommandantur Malbork. Tgb.-Nr.394/28 Tajne.
Do Pana Radcy Celnego Bigusch
Firma odpowiedzialna za montaż zapór drogowych poinformowała dzisiaj, że odbiór zapór wzniesionych w tutejszym okręgu odbędzie się w piątek, 29.6.28. Dokładny czas nie może być jeszcze podany i zostanie przekazany później ewentualnie telefonicznie.
Komendantura prosi Wielce Szanownego Pana o udział w przejeździe odbiorczym i pozostawanie w gotowości w wymienionym dniu w tym celu.
Z upoważnienia [podpis]


Odpis.
Ściśle Tajne.
Nadawca: Krauz, Dyrektor Vereinigten Bauunternehmung Breslau A.G.
K/F. Wrocław 5, dnia 23.06.1928.
Do Oficera Sztabowego Saperów przy Wehrkreiskommando Królewiec do rąk Pana Podpułkownika Klingbeila, Królewiec w/Prusach Wsch.
Przez posłańca! Dotyczy: Szlabanów celnych w odcinku Komendantur Malbork i Giżycko.
Niniejszym uprzejmie informuję, że instalacje szlabanów celnych nr 13-16 w okręgu Komendantury [Kommandanturbezierk] Malbork i nr 17 do 36 w okręgu Komendantury Giżycko zostały zamontowane. Niżej podpisany chciałby dokonać inspekcji gotowych instalacji w ciągu nadchodzącego i następnego tygodnia oraz dokonać ich odbioru z właściwymi urzędami. W poniedziałek 25 bm. rozpocznie się inspekcja na granicy śląskiej w porozumieniu z Komendanturą Kostrzyn i Wehrkreiskommando Szczecin, i zakładam, że objazd w tych dwóch okręgach zakończy się w czwartek 28 bm., tak że mógłbym zgłosić się w piątek 29 bm. rano do Komendantury Malbork. W piątek 29 bm. mogłyby zostać wówczas skontrolowane instalacje szlabanów w okręgu Komendantury Malbork, a jeśli będzie to jeszcze możliwe, pojechałbym w piątek wieczorem dalej do Giżycko i stawiłbym się w Giżycko w sobotę rano w Komendanturze w celu dalszej inspekcji. Objazd w okręgu Komendantury Giżycko mógłby wówczas rozpocząć się w sobotę 30 bm. i byłby kontynuowany w pierwszych dniach następnego tygodnia. Po zakończeniu objazdu udałbym się do Królewca, aby złożyć tam osobiście raport. Zakładam, że przybędę do Królewca w środę 4 bm. lub w czwartek 5 bm. Proszę o powiadomienie obu Komendantur. Niestety nie jestem w stanie podać dokładnych dat, ponieważ nie mogę ocenić, ile czasu zajmie objazd w poszczególnych okręgach i powiadomię Komendantury o moim przybyciu telefonicznie lub telegraficznie w trakcie podróży. Proszę usilnie o wyrażenie zgody na termin objazdu, ponieważ Ministerstwo Reichswehry w Berlinie przywiązuje największą wagę do jak najszybszego zakończenia tej sprawy. Powód podam osobiście podczas mojej obecności na miejscu.
Z wyrazami najwyższego szacunku podpisano Krauz.

Królewiec, dnia 25.06.1928.
1. Dywizja. ( Wehrkreiskommando I.) Abt. Stopi Nr 252/28 Ściśle Tajne.
Komendantura Twierdzy Malbork, Giżycko. Powyższy odpis przesyła się do wiadomości i dalszego postępowania. Po odbiorze szlabanów należy krótko zameldować tutaj.
Z ramienia Wehrkreiskommando. Szef Sztabu. [podpis]


Jedyne zdjęcie z 4 miejsc, gdzie w 1928 roku zainstalowany został szlaban, które udało mi się znaleźć, to przejście graniczne w Pastwie. Widać na nim szlaban, ale czy to szlaban firmy Vereinigten Bauunternehmung Breslau A.G. trudno stwierdzić.

[szlaban]
Granica Polska - Niemcy. Zollamt Gr. Weide - Pastwa. Obok szlaban. (Forum Dawny Gdańsk).

Kolega MxBx podesłał link do wyraźniejszego zdjęcia na deutschefotothek.de. błędnie identyfikowanego jako Korzeniewo. Tu już widać, że to szlaban firmy Vereinigten Bauunternehmung Breslau A.G.

[szlaban]
Granica Polska - Niemcy. Zollamt Gr. Weide - Pastwa. Obok szlaban. (deutschefotothek.de).

Jak widać z powyższego pisma 4 szlabany zostały wykonane, choć nie mam pisma o ich odebraniu. Później zaczęto dyskutować o następnych lokalizacjach (z opisywanego terenu Wygoda (Ruhwalde)), ale Minister Finansów Rzeszy pewnie z powodu braku środków wynikających z pogłębiającego się kryzysu, zabroniło instalowania nowych szlabanów na granicach.

Berlin, dnia 13.10.28.
Reichswehrministerium Heeresleitung. Nr. 537/28 Ściśle Tajne. Wehramt In 5 IV.
Dotyczy: Szlabanów drogowych.
Do Wehrkreiskommando I, II, III, IV. z 3, 1, 4, 1 egz.
1.) W nawiązaniu do pisma z dnia 27.4.28 Nr 273/28 Ściśle Tajne. Wehramt In 5 IV.
Zgodnie z załączonym w odpisie pismem z dnia 3.8.28, Minister Finansów Rzeszy odmówił udostępnienia środków swojej administracji jako udziału w budowie szlabanów drogowych. Dalsze kroki w tym kierunku należy zaniechać.
Dowództwo Wojsk Lądowych [Heeresleitung] zakłada, że przejęcie kosztów utrzymania przez krajowe urzędy skarbowe zostało powszechnie osiągnięte.
2.) Tutaj zgłoszono poszczególne życzenia dotyczące ulepszenia szlabanów:
a) Wzmocnienie pustych słupków szlabanów przez zabetonowanie. Podczas testów słupki okazały się wystarczająco mocne. Zabetonowanie wzmocniłoby je, szczególnie przeciwko wysadzeniu.
b) Ulepszenie zamknięcia szlabanu, które obecnie wymaga specjalnego dojścia do szlabanu, poprzez zastosowanie automatycznie zatrzaskującej się dźwigni. Zamknięcie szlabanu w obecnej formie jest proste i uznawane za wystarczające. Nagłe zagrożenie nie jest przewidywane.
c) Zamek szlabanu jest zbyt lekki. Podniesienie szlabanu nawet po usunięciu zamka nie jest możliwe bez dodatkowych działań, ponieważ ramię szlabanu - zarówno w pozycji poziomej - jest automatycznie blokowane przez korbę wciągarki wewnątrz pomieszczenia obsługi. Gdy tylko korba zostanie obrócona do urządzenia blokującego, podniesienie ramienia nie jest możliwe, nawet jeśli zamek zostanie usunięty i rygiel zamykający wyciągnięty.
Zamek służy więc jedynie temu, aby osoby nieupoważnione nie mogły po prostu wyciągnąć rygla i próbować podnieść szlaban siłą.
d) Koło linowe nie jest zabezpieczone. Zabezpieczenie koła linowego w celu zapobiegania wypadkom jest konieczne.
e) Szlaban w pozycji spoczynkowej stoi pionowo; zaproponowano lekkie ustawienie ukośne w celu zwiększenia trwałości. Nie ma zastrzeżeń do pionowej pozycji spoczynkowej.
f) Na korbie brakuje strzałki wskazującej kierunki obrotów "Otwórz" i "Zamknij", a także wskaźnika położenia, który nawet w ciemności pokazywałby, czy szlaban jest otwarty czy zamknięty. Oznaczenie kierunku obrotu jest pożądane, wskaźnik położenia nie jest konieczny.
Ulepszenia wymienione w punktach a) i f) należy wykonać przy okazji z dostępnych środków.
Odnośnie punktu d) Festungskommandantur Wrocław ma zameldować drogą służbową, czy zabezpieczenie koła linowego, które zgodnie z przepisami BHP jest wymagane, nie powinno być jeszcze wykonane przez firmę dostawczą, oraz jakie koszty powstaną przy montażu na wszystkich zaporach. Z upoważnienia [podpis]

Królewiec Pr., dnia 24 października 1928.
1. Dywizja. (Dowództwo Okręgu Wojskowego I) Wydz. Stopi Nr 644/28 Ściśle Tajne.
Do Festungskommandantur Giżycka (wraz z Szczytnem), Festungskommandantur Malbork.
Załączony rozkaz Ministerstwa Reichswehry 537.28 Ściśle Tajne. Wehramt In 5 IV z dnia 13.10.28 przesyła się w uzupełnieniu do Stopi Nr 363.28 Ściśle Tajne. z dnia 2.6.28 i Stopi Nr 364.28 Ściśle Tajne. z dnia 6.6.28. Ulepszenia nakazane przez Ministerstwo Reichswehry w punktach 2a i 2f należy wykonać przy okazji z dostępnych środków.
Z ramienia Dowództwa Okręgu Wojskowego. Szef Sztabu. Z upoważnienia [podpis]


Nie zakończyło to jednak dalszej dyskusji, czym śladem są poniższe dokumenty.

Odpis.
Berlin, dnia 16.2.1929.
Reichswehrministerium Heeresleitung. Nr. 146/29 Ściśle Tajne Wehramt In 5 IV.
Dotyczy: Zapór drogowych.
Do Wehrkreiskommando I. Królewiec
O ile tutaj wiadomo, w tamtejszym obszarze dowodzenia potrzebne są jeszcze następujące zapory drogowe:
Odcinek Insterburg 4 sztuki,
Odcinek Lötzen 20 sztuk, Odcinek Allenstein 6 sztuk,
Odcinek Malbork 6 sztuk,
Razem 36 sztuk.

Prosi się Dowództwo Okręgu Wojskowego o informację, czy i jakie zapory drogowe w Prusach Wschodnich są jeszcze uznawane za niezbędne. W grę mogą wchodzić tylko takie zapory drogowe, które mogą być tak wbudowane, że nie można ich objechać w szerszym obszarze i które same mogą być skutecznie bronione.
Za zgodność odpisu: [podpis] Techn. Urzędnik Administracyjny
Z upoważnienia podpisano Hopff

Królewiec dnia 28 lutego 1929.
1. Division. (Wehrkreiskommando I) Abt. Stopi Nr. 169/29 Ściśle Tajne.
Dotyczy: Zapór drogowych.
Do Festungskommandantur Giżycko (z odpisem dla Szczytna) Festungskommandantur Malbork, Infü I, Abt.Pi, Olsztyn, Komendantury, Abt.Pi, Wystruć (Insterburg).
Powyższy rozkaz Ministerstwa Reichswehry przesyła się w celu rozpoznania takich zapór drogowych, które mogą być tak wbudowane, że nie można ich objechać w szerszym obszarze i które same mogą być skutecznie bronione. Rozpoznanie należy przeprowadzić, gdy tylko warunki pogodowe na to pozwolą. Do wniosku, który należy złożyć niezwłocznie po przeprowadzeniu rozpoznania, należy dołączyć mapę w skali 1:100 000.
Z ramienia Dowództwa Okręgu Wojskowego. Szef Sztabu. [podpis] Wersmann.


Malbork, dnia 17.05.1929.
Festungskommandantur Abt. Tgb. Nr 282/29 Ściśle Tajne.
Odniesienie: 1. Div. Stopi 169/29 Ściśle Tajne z 28.2.29.
Dotyczy: Zapory drogowe.
Do 1. Division, Abt. Stopi Królewiec
Komendantura informuje, że w sprawie wykorzystania kolejnych 6 szlabanów drogowych nawiązała kontakt z Głównymi Urzędami Celnymi w Marienwerder i Elblągu. Wynik zostanie zgłoszony Dywizji na początku czerwca.
Rosenkranz Kapitan w st. spocz.


Elbląg, dnia 1.06.1929.
Główny Urząd Celny [Hauptzollamt]
O. 4572.
Do Komendantury w Malborku. Do rąk Pana Kpt. w st. spocz. Rosenkranza.
W celu zabezpieczenia przejść granicznych pilnie potrzebujemy na następujących stanowiskach zapór granicznych względnie szlabanów. 1. Przy Urzędzie Celnym Biała Góra po obu stronach budynku po jednym szlabanie, razem = 2 szlabany.
2. Na moście Jagow [Jagowbrücke], który został zbudowany między Uśnicami i Białą Górą nad przekopem Nogatu, - środek toru wodnego przekopu stanowi granicę - zapora drogowa w formie masywnej żelaznej kraty.
3. Przy Urzędzie Celnym na moście na Nogacie w Malborku 1 szlaban.
Budowa tych zapór musiała jednak zostać zaniechana z powodu braku środków.
Ponieważ poprzez wymienione zapory drogowe jednocześnie realizowane są tamtejsze interesy, a według informacji po Państwa stronie dostępne są środki, wnioskujemy niniejszym o zbudowanie wymienionych zapór drogowych na Państwa koszt. Zobowiązujemy się do obsługi tych urządzeń przez naszych urzędników.
Niezbędne rysunki i plany sytuacyjne zostały już względnie zostaną jeszcze przesłane przez Pana Radcę Budowlanego [Regierungsbaurat] Bollachera z Urzędu Budownictwa Rzeszy w Elblągu. Prosimy o kierowanie ewentualnych dalszych niezbędnych zapytań do wymienionego pana względnie do Pana Inspektora Celnego


W połowie 1929 roku rozważano instalację 4 nowych szlabanów, ale przeglądając zdjęcia archiwalne dochodzimy do wniosku, że ich nie wykonano. W Białej Górze zamiast szlabanów zainstalowano na śluzie bramę (patrz -> TU).

Malbork, dnia 6.6.1929.
Festungskommandantur Tgb.Nr. 257/29.
Odnośnik: 1. Division - Stopi. 169/29 z 26.2.29.
Dotyczy: Rozpoznania zapór drogowych.
Do 1 Division - Abt.Stopi. - Królewiec
W obszarze Festungskommandantur Malbork rozpoznanie wykazało możliwość instalacji 4 kolejnych zapór drogowych:
1. Most kolei wąskotorowej nad Nogatem, 300 m na północny wschód od Zamku w Malborku, przy punkcie kontroli paszportowej,
2. 400 m na południowy zachód od Białej Góry, przy kontroli paszportowej,
3. W Szadówku, 8 km na południowy zachód od Białej Góry na skrzyżowaniu dróg Szadówko - Kwidzyn, Szadówko - Gniew,
4. Zachodni wyjazd z Korzeniewa. zob. załącznik 6.
Do 1: zob. załącznik 1. Obsługa i utrzymanie przez administrację celną.
Do 2: zob. załącznik 2. Urząd celny ma zostać solidnie przebudowany. Jeśli w interesie wojskowym pożądana jest konstrukcja betonowa, powstałyby dodatkowe koszty ok. 2000 marek, które musiałby ponieść fiskus Reichswehry [Reichswehrfiskus]. Obsługa i utrzymanie przez administrację celną [Zollverwaltung].
Do 3: zob. załącznik 3. Obsługa i utrzymanie nie byłyby tu prowadzone przez administrację celną, lecz przez krajową policję kryminalną [Landeskriminalpolizei]. Należałoby nawiązać odpowiedni kontakt z administracją Kwidzyna.
Do 4: zob. załącznik 4. Nie można dokonywać żadnych zmian w przyczółkach, ponieważ są one w połowie niemieckie, w połowie polskie. Utrzymanie i obsługa byłyby tu prowadzone, podobnie jak w punkcie 3, przez krajową policję kryminalną. Należałoby nawiązać kontakt z administracją Kwidzyna. Odpowiednie stanowiska karabinów maszynowych do nadzoru szlabanów w przypadku wojny są dostępne we wszystkich 4 lokalizacjach.
Radca budowlany [Baurat] Bollacher z Urzędu Budowlanego Rzeszy [Reichsbauamt] w Elblągu ma wyznaczony na 19.6 wykład w Krajowym Urzędzie Finansowym [Landesfinanzamt] w Królewcu w sprawie nowej budowy urzędu celnego w Białej Górze (zob. zał. 2). Uznaje się za celowe, aby radca budowlany Bollacher, który wyraził na to zgodę, został wezwany wraz z referentem fachowym kapitanem w st. spocz. dr. Rosencrantzem na 19.6 na wykład do 1. Division, Stopi. W załącznikach 5a i 5b Komendantura przesyła 1 zdjęcie możliwości zapory drogowej na drodze Iława - Radomno, 6 1/2 km na południe od stacji Iława. (Obszar Inf.I.)
8 załączników
Z up. [podpis]


[szlaban]
Granica Wolne Miasto Gdańsk - Niemcy. Malbork. Projekt umiejscowienia szlabanu. (BAMA).

[szlaban]
Granica Wolne Miasto Gdańsk - Niemcy. Malbork. Projekt umiejscowienia szlabanu. (BAMA).

[szlaban]
Granica Wolne Miasto Gdańsk - Niemcy. Biała Góra. Projekt umiejscowienia szlabanów. (BAMA).

[szlaban]
Granica Wolne Miasto Gdańsk - Niemcy. Biała Góra. Projekt umiejscowienia szlabanów. (BAMA).

[szlaban]
Granica Polska - Niemcy. Szadówko. Projekt umiejscowienia szlabanu. (BAMA).

[szlaban]
Granica Polska - Niemcy. Korzeniewo. Projekt umiejscowienia szlabanu. (BAMA).

Królewiec, dnia 17.06.1929.
1. Division. Stopi Nr. 410/29 Ściśle Tajne.
Odniesienie: 1. Div. Stopi 169/29 Ściśle Tajne z 28.2.29, Festungskommandantur Malbork 358/29 Ściśle Tajne z 6.6.29.
Dotyczy: Rozpoznanie zapór drogowych.
Do Festungskommandantur Malbork.
Zapory drogowe mają w przypadku wojny zapobiegać wtargnięciu nieprzyjacielskich pancernych pojazdów drogowych. W tym celu muszą być one oddalone od granicy na tyle, aby w razie potrzeby mogły być obsługiwane i bronione z pewnością. Przedłożone propozycje nie uwzględniają w wystarczającym stopniu tego punktu widzenia. Ich położenie odpowiada bardziej pokojowym potrzebom zaangażowanych władz cywilnych.
Administracja wojskowa nie ma powodu do ponoszenia wydatków na ten cel.
W szczególności, w odniesieniu do propozycji, na podstawie wczorajszej rozmowy z radcą budowlanym Bollacherem, zauważa się:
Do 1) Do zamknięcia dotychczasowego przejazdu wystarczają istniejące żelazne bramy. Instalacja szlabanu drogowego wchodzi zatem w grę tylko dla planowanego nowego objazdu.
Do 2) Przy Białej Górze. Szlaban i konstrukcja betonowa według tamtejszej propozycji znajdują się bezpośrednio przy granicy; tutaj nie do utrzymania. Bardziej wchodzi w grę wykonanie przy urzędzie celnym na wschód od Białej Góry, jeśli tutaj warunki terenowe po bokach drogi wykluczają objechanie zapory. Czy wydatkowanie środków wojskowych na budowę betonowej piwnicy we wschodnim urzędzie celnym jest uznawane za uzasadnione, zostanie wyjaśnione podczas okazjonalnej rozmowy w In 5.
Do 3) Proponuje się rozważenie instalacji zapory drogowej na moście drogowym nad Starym Nogatem na wschód od Szakrdowo Szlacheckie.
Do 4) Wchodzi w grę instalacja zapory drogowej w okolicy cegielni na wschód od Korzeniewie w miejscu, gdzie rowy wodne po obu stronach drogi wykluczają objechanie zapór.
Oczekuje się propozycji zmian na podstawie powyższych uwag.
Z ramienia Dowództwa Okręgu Wojskowego. Szef Sztabu. Z upoważnienia [podpis] Steinborn

[Odręczne adnotacje:] Komendantura Twierdzy Malbork. Nr. 346.29 Dziennik 263/29
Komendantura Twierdzy Plan sytuacyjny został przesłany tylko identyczny odpis Ke (?)


Malbork dnia 20.1.30.
Festungskommandantur Tgb.Nr. 14/30 Tajne.
Odnośnik: 1. Div., Stopi. 305/29 z dnia 3.12.29.
Dotyczy: Blokada drogowa w Szadówku [Schadewinkel].
Do 1. Division - Abt. Stopi. - Królewiec
Ustawienie szlabanu w Szadówko nie jest zalecane przez komendanturę, ponieważ nie zapewni skutecznej blokady drogi Szadówko - Szkaradowo Szlacheckie, a ponadto na granicy nie ma budynku celnego, lecz tylko drewniana buda do kontroli paszportowej.
Komendant [podpis] Major


Szlabany 1932

Plany z 1929 roku instalacji szlabanu celnego przy niemieckiem Urzędzie Celnym koło mostu drogowego w Malborku nie zostały zrealizowane. Aby zabezpieczyć most od nagłego wtargnięcia ze strony Wolnego Miasta Gdańska pojazdów pancernych w 1932 roku zaplanowano i wykonano przy wschodnim, niemieckim przyczółku zaporę składającą się z trzech lin stalowych powieszonych jedna nad drugą. Wzmocnieniem jej miało być zdejmowanie specjalnych metalowych płyt zastępujących nawierzchnię mostu.

Malbork, dnia 16.1.32.
Festungskommandantur Abt. Pi. Nr 319/32 Ściśle Tajne.
Do 1. Division - Abt. Stopi. - Królewiec
W sprawie zablokowania mostu na Nogacie (most drogowy) przeciwko nagłemu pojawieniu się pojazdów pancernych z Wolnego Miasta przedstawia się następującą propozycję:
1.) potrójna zapora z lin stalowych. Liny jedna za drugą, na różnych wysokościach w odstępach 1-2 m.
2.) 10 m przed mostem zostanie wykonane już w czasie pokoju zdejmowane pokrycie. Urząd Gospodarki Wodnej [Wasserbauamt] wykona pokrycie przy najbliższej naprawie za zwrotem kosztów.
Obsługa: Liny stalowe znajdują się bezpośrednio przy wjeździe na most w budynku celnym. Obsługa przez urzędników celnych, porozumienie zostało zawarte. Jako pierwsze zabezpieczenie byłoby zawieszenie lin stalowych, następnie zdjęcie wjazdu na most, aby uniemożliwić pojazdom pancernym wjazd z pełną prędkością na zaporę.
Koszty: 3 liny stalowe 60.- Mk. = 180.- Mk.
Przygotowanie luźnych płyt i urządzeń mocujących dla lin stalowych przez Urząd Gospodarki Wodnej ok. 200.- Mk.
Suma: 380.- Mk.
Prosi się o zgodę i przydzielenie środków.
Komendant [podpis] Podpułkownik


Królewiec, dnia 27.1.1932.
1. Division (Wehrkreiskommando I.) Abt. Stopi. 14/32 Ściśle Tajne.
Do Reichswehrministerium, Heeresleitung, Wehramt In 5 Berlin W 10 przez Inspizienten für das Festungsbauwesen [Inspektora ds. Budownictwa Fortecznego] Berlin W 8, Leipzigerstraße 5-7.
Z prośbą o sprawdzenie i zatwierdzenie planowanych działań.
Wehrkreiskommando uważa zablokowanie mostu na Nogacie za pilne, a rozwiązanie za użyteczne.
Środki zostaną włączone do wykazu utrzymania budowlanego na rok 1932.
Szef Sztabu [podpis]


Berlin, 9.02.1932.
Der Chef der Heeresleitung Nr 39/32 Ściśle Tajne. Wehramt In 5 IVa.
Dotyczy: Blokady mostu na Nogacie.
Odniesienie: Wehrkreiskommando Stopi Nr.14/32 g.K. z dn. 27.1.32.
Do Wehrkreiskommando I (z 1 kopią dla Komendantury Malbork)
Do wiadomości: Inspizient für Festungsbauwesen [Inspektor ds. Budownictwa Fortyfikacyjnego].
Z projektu nie wynika, w jaki sposób planowane jest zawieszenie lub zamocowanie lin stalowych. Zwykłe zawieszenie lin nie jest wystarczające, ponieważ przeciwnik, jeśli nie ma osłony ogniowej, może szybko usunąć blokadę.
Usunięcie pokładu mostu jest zasadniczo celowe. Czy może zostać wykonane na czas, pozostaje kwestią wątpliwą.
Bardziej skuteczna i mniej rzucająca się w oczy jest szlaban celny [Zollschranke] (system Kreuz), którym można sterować z posterunku celnego.
Proszę o informację, czy możliwe jest uzyskanie współfinansowania takiego szlabanu przez inne urzędy.
Jednocześnie proszę o dostarczenie planu sytuacyjnego z zaznaczeniem przebiegu granicy na moście lub w jego pobliżu.
Z upoważnienia [podpis]


2.3.1932
Komendantura Twierdzy Malbork Pi Nr. 9/32 Ściśle Tajne.
Dotyczy: t Pi. Nr.213/32 z 16.1.32. Der Chef der Heeresleitung Nr.39/32 t Ściśle Tajne Wehramt In 5 IV a.
Blokady mostu na Nogacie.
Do 1. Division (Wehrkreiskommando I) Abt. Stopi. Królewiec
1.) Załączony zostaje rysunek przedstawiający planowane zawieszenie. Ochrona przeciwpożarowa jest przewidziana przez komendanturę.
2.) Usunięcie pokładu mostu jest planowane jako drugi środek, jeśli będzie dostępny potrzebny czas. (Przygotowanie pokładu - jak przewidziano - zostanie wykonane podczas naprawy mostu.)
3.) Jak widać na rysunku, szlaban celny może być umieszczony albo przy wschodnim wyjściu z mostu, wtedy znajduje się około 50 m od urzędu celnego i nie może być stamtąd obserwowany, albo w pobliżu urzędu celnego, wtedy można go objechać i nie spełnia zamierzonego celu. Dlatego wydaje się bardziej praktyczne zatwierdzenie blokady w zaproponowany sposób.
a.) Koszty są niskie w porównaniu do szlabanu celnego (system Kreuz). 380 RM wobec około 1500 RM. Lokalny urząd celny odmówił udziału, ponieważ nie jest zainteresowany szlabanem celnym.
b.) Bezpieczeństwo jest znacznie większe; przy podniesieniu pokładu pojazd pancerny nie może jechać z pełną prędkością przeciwko przeszkodzie i natrafia wtedy na potrójną blokadę.
4.) Plan sytuacyjny jest załączony.
[Podpis]


Berlin, 18.03.1932.
Der Chef der Heeresleitung Nr.104/32 Ściśle Tajne Wehramt In 5 IVa.
Odniesienie: Wehrkreiskommando I Stopi Nr.68/32 Tajne z 16.3.32.
Dotyczy: Blokady mostu na Nogacie w Malborku.
Do Wehrkreiskommando I (z 1 kopią dla Festungskommandantur Malbork)
Do wiadomości: Inspektor ds. Budownictwa Fortecznego [Inspizient für Festungsbauwesen].
Planowany środek zostaje zatwierdzony. O przydziale środków można zdecydować dopiero w ramach pozostałych wniosków.
Z upoważnienia [podpis]

Królewiec, 30.03.1932.
1. Division (Wehrkreiskommando I) 114/32 Ściśle Tajne
Odniesienie: tamtejsze pismo Wydz. Pi. Nr. 9/32 Ściśle Tajne z 2.3.32.
Dotyczy: Blokady mostu na Nogacie.
Do Festungskommandantur Malbork
Przesłano kopię.
Szef Sztabu, [podpis]


Malbork, 18.6.32.
Festungskommandantur Dziennik Nr. 48/32 Ściśle Tajne.
Odniesienie: 1. Division Abt. Stopi. Nr.114/32 Tajne dow. z 30.3.32 i Der Chef der Heeresleitung Nr.104/32 Ściśle Tajne Wehramt 5 IVa z 18.3.32.
Dotyczy: Blokady mostu na Nogacie w Malborku.
Do 1. Division Abt. Stopi. - Królewiec
Wyżej wymienioną decyzją Der Chef der Heeresleitung zatwierdzono planowany środek dotyczący blokady mostu na Nogacie w Malborku. O przydziale środków miało być zdecydowane dopiero w ramach pozostałych wniosków. Ponieważ w międzyczasie pismem 1.Division Stopi. Nr.66/32 Ściśle Tajne z 15.6.32 nastąpił przydział środków na kilka projektów budowlanych tutejszej placówki w VIII K 2 tytuł 41, bez uwzględnienia blokady mostu na Nogacie, prosi się o możliwie szybką informację, czy można liczyć na rychły przydział środków w wysokości 400 RM na wymieniony cel. Decyzja jest tym pilniejsza, ponieważ właściwy Urząd Gospodarki Wodnej [Wasserbauamt] rozpoczął już naprawę pokładu z desek mostu, a urządzenie blokujące miało być wykonane przy okazji prac naprawczych ze względu na tańszą realizację.
[podpis]


Malbork, dnia 2.7.32.
Festungskommandantur Abt. Pi. Nr. 39a/32.
Do Firmy C. Werder Kostrzyn - Stare Miasto Schloßfreiheit 188.
Festungskommandantur potrzebuje 3 sztuki lin stalowych o długości 8,95 m każda (mierzone od wewnętrznej krawędzi do wewnętrznej krawędzi kauszy, patrz szkic na marginesie) i grubości 31 m/m, z kauszami na obu końcach. Wymagana całkowita wytrzymałość na zerwanie pojedynczej liny: 44 000 kg. Prosimy o możliwie niezwłoczne przedstawienie oferty z podaniem ceny za dostawę 3 sztuk lin loco stacja kolejowa Malbork oraz jednoczesne podanie terminu dostawy, licząc od dnia otrzymania ewentualnego zlecenia.
[podpis] Kapitan.


[lina]
Rysunek liny do zamówienia. (BAMA).

Kommandantur (Abt. Pi.) Malbork. Rok rozliczeniowy 1932.
Rozdz. VIII K 2 Abt. Pi.
Rozliczenie kosztów dotyczące wykonania zapór na drodze dojazdowej do mostu na Nogacie na rachunek Festungskommandantur Malbork.
1.) 198 roboczogodzin ciesielskich x 0,63 - 124,74
2.) Dostawa kauszy - 17,98
3.) Koszty ogólne 60% - 85,63
Razem: 228,20

Malbork, dnia 15 września 1932
Kierownik Urzędu Gospodarki Wodnej
podpisano Jaeger, Radca Budowlany.
Merytorycznie poprawne! Wykonanie wymienionych zapór na drodze dojazdowej było potrzebne po cenie ryczałtowej.

Malbork, dnia 17 września 1932
Z upoważnienia podpisano v. Pieler Kapitan.


Kopia.
Królewiec, dnia 23.09.1932.
1. Division (Wehrkreiskommando I) Abt. Stopi 553/32 Tajne.
Do Festungskommandantur Malbork.
Rachunek zostaje odesłany z następującymi uwagami:
1.) Z jakiej udostępnionej kwoty mają zostać zapłacone rachunki?
2.) Do rachunku za naliczone godziny pracy cieśli musi zostać dołączona lista płac, z której muszą wynikać również odprowadzone składki socjalne. 3.) Koszty ogólne muszą zostać wyjaśnione. Ich udział w wysokości 60% należy uznać za nadzwyczajnie wysoki.
1 rachunek.
Szef Sztabu Z upoważnienia podpisano Engelbrecht.

Wpłynęło 24.09., odpowiedź 21.10.1932.
Festungskommandantur Malbork, Abt. Pi. Nr I 643/32 Tajne.
Do 1) Na zaporę mostu na Nogacie koło Malborka, pismem 1. Division Stopi Nr 210/32 Ściśle Tajne z 23.6.32 udostępniono 400,- RM. Z tego wydano już 162,00 + 0,10 = 162,10 RM na zakup lin stalowych, tak że na zapłatę przedstawionego rachunku pozostaje jeszcze kwota 237,90 RM.
Do 2) i 3) Załączone jest stanowisko Urzędu Gospodarki Wodnej w Malborku. Rzeczywiste koszty wykonania podnoszonych klap w drewnianym pokładzie mostu wynoszą około 600,- RM. Urząd Gospodarki Wodnej w Malborku w sposób przychylny zadeklarował wykonanie prac za ryczałtową kwotę około 230,- RM włącznie z dostawą wszystkich materiałów zapewnionych przez Urząd Gospodarki Wodnej; które powinno być wykonane w miarę możliwości przez Oddział, ponieważ Abt. Pi. nie dysponowała większymi środkami.
[podpis] Pieler


Kopia.
Malbork, dnia 18.10.1932.
Wasserbauamt Tagebuch-Nr. 2317.
Do pisma z 3 bieżącego miesiąca Nr I 643/32 Wydz.Sap.
Na uwagi 1. Dywizji z pokorą komunikuje się:
1. Wykonane na rachunek fortyfikacji godziny pracy cieśli zostały wykazane w rozliczeniach płacowych za okresy płacowe od 25 maja do 21 czerwca i od 22 czerwca do 19 lipca 1932 r. w jednostce rozliczeniowej "Rozdział 68 Tytuł 53 Administracji Handlu i Przemysłu za 1932", z których wynikają również odprowadzone składki socjalne. Dokumenty znajdują się w Państwowej Kasie Powiatowej (Kasa Gospodarki Wodnej) Malbork i są w razie potrzeby dostępne tam do wglądu. Zgodnie z wydanymi upomnieniami rozliczeniowymi Trybunału Obrachunkowego Rzeszy Niemieckiej i Pruskiej Wyższej Izby Obrachunkowej nie wolno już sporządzać odrębnych list płac za prace dla obcych urzędów itp., lecz takie prace muszą być wykazywane w rachunkach jako takie w rachunkach administracji budowlanej. Rozliczenie kosztów z 15 września 1932 r. stanowi zatem jedynie wyciąg z rachunków administracji budowlanej, jak mają być one tutaj wykazywane jako dochód wraz z kosztami ogólnymi.
2. Koszty ogólne w wysokości 60% za prace poza zakładami warsztatowymi z użyciem narzędzi i urządzeń są przepisane ministerialnie. Obejmują one odszkodowanie za użycie narzędzi i urządzeń (oprocentowanie, amortyzacja, nadzwyczajne prace naprawcze oraz koszty utrzymania), pensje i dodatki urzędników, koszty administracyjne, wydatki na cele socjalne itp.
podpisano Jaeger.
Do Komendantury Twierdzy Malbork


Festungskommandantur Malbork. Sygn. Pi. 30/X 32
(pieczęć okrągła) Państwowa Kasa Powiatowa Malbork
Do Fortyfikacji w Malborku
(pieczęć pocztowa) MALBORK (PR. ZACH.) 29.10.32 15-16 z grafiką autobusu i napisem w otoku: POCZTA SAMOCHODOWA DO GDAŃSKA 3 razy dziennie
Malbork, dnia 29.10.1932.
Kasa Budownictwa Wodnego
(Pieczęć okrągła z napisem wokół: PAŃSTWOWA KASA POWIATOWA MALBORK)
Należność: Zgodnie z zawiadomieniem tutejszego Urzędu Budownictwa Wodnego z dnia 15.09.1932 r. - nr 2143 - za wykonane prace przy \moście drogowym na Nogacie należy uiścić kwotę 228,35 RM. Proszę o jak najszybszy przelew tej kwoty.
[podpis]
(Odręczne notatki na dole) Kwota wpłynęła do kasy urzędu dnia 7/XI. 32.
[podpis]


[kartka]
Kartka ze zleceniem do wypłaty. (BAMA).

Instrukcja dotycząca blokady mostu drogowego na Nogacie.
1.) Liczebność oddziału: 1 - 16.
2.) Składowanie wymienionych materiałów: Urząd Celny Most na Nogacie. 3 liny stalowe 6 strzemion żelaznych ze stali rzecznej (lub: miękkiej) o grubości 50 mm 3 dwuteowniki żelazne N.P.8, każdy o długości 40 cm 4 łomy 1 młot torowy 1 obcęgi.
Wykonanie: 
3.) Prace do wykonania: Dostarczenie i zawieszenie lin stalowych. Zdjęcie ułożonych drewnianych płyt pomostowych.
4.) Kolejność prac: Zawieszenie 3 lin po stronie górnego biegu rzeki (nurtu górnego) w miejscach oznaczonych białymi krzyżami z farby olejnej. Użycie długich sworzni, patrz rysunek. Zawieszenie 3 lin po stronie dolnego biegu rzeki (nurtu dolnego). Mocowanie lin poprzez założenie klinów i mocne drutowanie drutem o średnicy 5 mm. Do pkt. 4.) potrzeba: 4 ludzi. Czas: 10 minut.
5.) Równocześnie z zawieszaniem lin, zdjęcie luźno ułożonych płyt pomostowych, rozpoczynając od strony nieprzyjaciela przy torze kolejki wąskotorowej. Tymczasowe składowanie płyt na jezdni mostu, pomiędzy zdejmowanymi płytami pomostowymi a zawieszonymi linami stalowymi. Początkowa liczebność oddziału: 12 ludzi. Później dołączają 4 osoby od zawieszania lin.
6.) Całkowity czas na wykonanie blokady: 20 - 25 minut. Dowódca oddziału odpowiada za wykonanie pkt. 4.) i 5.).
7.) Po całkowitym wykonaniu blokady, jeśli czas pozwoli, odtransportowanie tymczasowo składowanych na pomoście luźnych płyt pomostowych.
a.) Działanie to ma być wykonane na rozkaz Komendantury Twierdzy przez Urząd Celny w Malborku.
b.) Jeśli blokada mostu nie została jeszcze wykonana w momencie użycia plutonu saperów z batalionu wartowniczego nr 165, zostanie ona natychmiast przeprowadzona przez oddział poinstruowany (przeszkolony) w czasie pokoju.


Kilkanaście lat temu na jednej z aukcji sprzedawano zestaw 4 zdjęć z oboma mostami w Malborku. Zdjęcia zostały zrobione już w czasie 2 wojny światowej. Poniżej 2 z nich. Górne przedstawia wschodni portal mostu drogowego. Gdyby było zrobine z bliższej odległości byc może widać by było zawiesia do trzech lin blokujących i zdejmowane pomosty. Na dolnym widzimy widok z mostu drogowego w kierunku wschodniego wylotu. Na pierwszym planie widać jakąś zaporę stalową (?) czy koniec pojazdu?

[most]
Most drogowy w Malborku w czasie 2 wojny światowej.

Szlabany 1935

W 1935 roku dyskutowano o instalacji nowych, obrotowych szlabanów przeciwpancernych. Ze względu na wysokie koszty w zachodniej części Prus Wschodnich zrezygnowano z budowy takowych, a podobne efekty próbowano osiągnąć prostszymi i tańszymi metodami.

Vereinigte Eisenbahn-Signalwerke GmbH
Załącznik 2
Szef Hltg. B 39 e TA In Fest III Nr 599/35 Tajne z 6.3.35.
Braunschweig, 19.02.1935.
F1/Gv
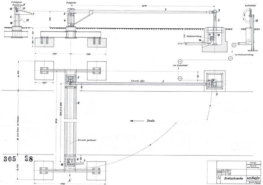
Układ i sposób działania szlabanu obrotowego według rysunku 401 A 40/11.

1. Układ
Przedstawiony na rysunku 401 A 40/11 szlaban obrotowy składa się z poziomo obracającego się ramienia szlabanu (1), które jest osadzone na słupie obrotowym (2).
W pozycji otwartej (jak przedstawiono na rysunku) ramię szlabanu biegnie równolegle do jezdni i jest utrzymywane oraz blokowane na słupie (3). Siła potrzebna do zamknięcia szlabanu jest generowana przez sprężynę skrętną (4), umieszczoną w słupie obrotowym (2), która pozostaje napięta w pozycji otwartej. Po zwolnieniu rygla (5) na słupie (3) za pomocą mechanizmu zwalniającego (11), sprężyna skrętna (4) obraca ramię szlabanu o kąt 90° do pozycji zamkniętej (patrz rysunek - przerywana linia; ramię szlabanu pokazano w skróconej formie).
Po przeciwnej stronie ulicy, naprzeciwko słupa obrotowego, znajduje się słup oporowy (6). Jego nachylona powierzchnia (7) unosi końcówkę ramienia szlabanu i spowalnia ruch zamykający. Mechanizm zatrzymujący, składający się z rygla (17) dociskanego silną sprężyną, zatrzymuje końcówkę ramienia szlabanu i automatycznie ją blokuje.
Zarówno słup obrotowy, jak i słup oporowy są zamocowane na stalowej kratownicy nośnej (8) z profili dwuteowych, która przechodzi pod drogą i jest przymocowana śrubami do dwóch betonowych fundamentów po obu stronach drogi.
Mechanizm zwalniający jest obsługiwany za pomocą linki poprowadzonej w rurach szczelinowych, a jej napięcie regulowane jest dźwignią zwalniającą (12). Mechanizm może być uruchamiany z dowolnego miejsca w promieniu do 300 metrów.

2. Sposób działania
A) Zamknięcie szlabanu
Dźwignia zwalniająca (12), utrzymywana w pozycji wyjściowej przez blokadę ręczną, zostaje opuszczona o 180° (patrz rysunek - linia przerywana). W wyniku tego linka sterująca, na końcu której działa sprężyna naciągowa (13) mechanizmu zwalniającego (11), zostaje poluzowana. Sprężyna naciągowa przesuwa element prowadnicy (14), co powoduje odciągnięcie rygla (5) w górnej części słupa (3).
Uwolnione ramię szlabanu, napędzane przez sprężynę skrętną (4), obraca się poprzecznie nad jezdnią i zatrzymuje się w słupie oporowym (6). Droga zostaje zamknięta.
Ramię szlabanu, wzmocnione stalową liną, jest bezpiecznie osadzone w obu słupach i może wytrzymać znaczne siły niszczące próbujące je przełamać. Czas zamykania wynosi w zależności od długości ramienia około 3-4 sekundy.
B) Otwarcie szlabanu
Szlaban można otworzyć tylko ręcznie, lokalnie, za pomocą specjalnego urządzenia.
Dźwignia zwalniająca (12) musi zostać uprzednio przywrócona do pozycji wyjściowej. Następnie, za pomocą dźwigni pomocniczej (15), która jest mocowana na trzpieniu słupa oporowego (16), zwalnia się rygiel (17) mechanizmu blokującego.
Hak zabezpieczający (18) utrzymuje dźwignię pomocniczą na miejscu.
Następnie końcówka ramienia szlabanu jest podnoszona ręcznie ze słupa oporowego, a ramię obraca się o 90°. W pozycji otwartej jest ono blokowane poprzez zatrzaśnięcie w mechanizmie blokującym słupa (3).
Po otwarciu szlabanu dźwignia pomocnicza (15) musi zostać usunięta.

3. Montaż i informacje dotyczące zamówienia
Szlaban montuje się w taki sposób, aby w pozycji otwartej jego ramię wskazywało w stronę, z której mogą nadjeżdżać pojazdy podlegające kontroli. Ramię szlabanu i słupy są wymienne.
Długość ramienia zależy od szerokości jezdni. Środek słupa obrotowego i słupa oporowego znajduje się 0,5 m poza krawędzią jezdni.
Podczas składania zamówienia należy podać wymiar "a" - szerokość przejazdu oraz sprawdzić, czy po obu stronach drogi jest wystarczająco dużo miejsca na betonowe fundamenty ("b").
Maksymalna szerokość jezdni dla pojedynczego szlabanu wynosi 9,0 m. W przypadku szerszych dróg konieczne jest podzielenie ich wysepką i zastosowanie dwóch niezależnych szlabanów.
Waga całej instalacji, bez elementów sterujących, wynosi około 6000 kg.


[szlaban]
Szlaban firmy Vereinigte Eisenbahn-Signalwerke GmbH. (BAMA). Powiększ rysunek

Berlin, dnia 8.03.1935.
Der Chef der Heeresleitung B 39 e T A In Fest/III 599/35 Tajne.
Dotyczy: Zapora obrotowa przeciwko pojazdom pancernym.
Do: [tu lista 101 odbiorców dokumentu między innymi Wehrkreiskommando I]
2 załączniki - W załączeniu przesyła się: 1 rysunek Kz 305 S 8, 1 opis.

Zapora zabezpiecza przed pojazdami pancernymi. Należy ją instalować tam, gdzie:
1.) nie może być objechana,
2.) jest możliwie chroniona przed bezpośrednim widokiem z kierunku natarcia,
3.) może być obsługiwana z ukrytej pozycji i
4.) może być zabezpieczona przez wartowników.
Słupki należy zamaskować odpowiednio do miejscowych barier ochronnych. Często zaleca się jednoczesne ustawienie odpowiedniej bariery po przeciwnej stronie zapory. Maskowanie również jako bariera ochronna.
Producentem zapory obrotowej są Vereinigten Eisenbahn-Signalwerke Braunschweig [Zjednoczone Zakłady Sygnalizacji Kolejowej Braunschweig].
Zakup odbywa się centralnie przez Dowództwa Okręgów Wojskowych, placówki wojskowe, Inspekcję Fortyfikacji Wschodnich i Zachodnich dla podległych im jednostek bezpośrednio u producenta.
Cena zapory przy zakupie pojedynczym 4 do 5 000 RM,
Cena zapory przy zakupie seryjnym 3 do 4 000 RM.
Cena obejmuje zapewnienie nadzór nad montażem [Richtmeisters], ale nie obejmują kosztów instalacji.
Z podziału belki zapory na 2 połowy, z których każda wychyla się do środka, zrezygnowano z przyczyn konstrukcyjnych.
Z upoważnienia [podpis]


Królewiec, dnia 20.03.1935.
Dotyczy: Zapora obrotowa przeciwko pojazdom pancernym.
Odniesienie: Wehrkreiskommando I, Abt.Stopi Nr.124/35 Tajne z 27.2.35.
Załączone zarządzenie: Der Chef der Heeresleitung B 39 e T.A. In Fest III z 8.3.35 do wiadomości i Nr.599/35 Tajne.
Do przestrzegania.
Placówki służbowe, w których może wchodzić w grę instalacja zapór obrotowych na podstawie zapotrzebowania, mają już teraz przeprowadzić rozpoznanie. Szczególnie zwraca się uwagę na wymagane szerokości poza samą drogą, niezbędne do instalacji słupów.
Z powodu wysokich kosztów zapory obrotowej, transportu i samej instalacji (według tutejszego oszacowania ok. 7-8 000 RM za zaporę) wydaje się konieczne sprawdzenie, czy ten sam cel nie może być osiągnięty równie pewnie i taniej przy pomocy innych zapór.
Szef Sztabu [podpis]

Rozdzielnik:
przez Arfü I - Abt. Pi. Insterburg = 1,
przez Infü I - Pi. Abschn. Szczytno = 1, ­Festungsommendantur Giżycko = 1,
przez Kommendantur Elbląg - Zweigstelle Malbork = 1, Zweigstelle Ostróda = 1,
Festungsommendantur Królewiec = 1,
Stopi. Reserve po 1 = 2
[suma] 8

Kommendantur Elbląg, Abt. Pi. Nr. 74/35 Tajne z 22.03.1935
Do Pi. Zweigstelle Malbork
Na moście drogowym na Nogacie można to samo osiągnąć prostymi środkami.


Królewiec, dnia 9.07.1935.
Wehrkreiskommando I Abt. Stopi Nr 511/35 Tajne.
Odniesienie: Wehrkreiskommando I Abt. Stopi Nr 49/35 Ściśle Tajne z dnia 24.1.35.
Dotyczy: Zapotrzebowanie na sprzęt itd.
Do:
Artillerie-Führer I, Abt. Pi. Królewiec z 1 dodatkowym egzemplarzem
Infanterie-Führer I, Abt. Pi. Olsztyn z 2 dodatkowym egzemplarzami
Kommandantur, Abt. Pi. Elbląg z 2 dodatkowym egzemplarzami
Kommandantur d. Festg. Abt.Pi. Królewiec
Odpis: Der Oberbefehlshaber des Heeres [Naczelny Dowódca Wojsk Lądowych] 39 a (Bp) T.A. In Fest/III 2178/35 Tajne z dnia 1.7.1935.
Do wiadomości.
Jednostki służbowe przedłożą do dnia 15.8.35 po jednej propozycji dotyczącej instalacji szlabanu obrotowego do Wehrkreiskommando I, Wydz. Stopi.
Szef Sztabu [podpis]
Za zgodność: [podpis] Kapitan (E)


Malbork, dnia 8.8.1935.
Sperrdienstruppe Malbork, Prusy Zachodnie Nr 175/35 Tajne.
Projekt
Odniesienie: Kommandantur Elbląg Abt. Pi. Nr 197/35 Tajne z dnia 15.7.35.
Dotyczy: Instalacja szlabanów obrotowych.
Do Kommandantur Elbląg Abt. Pi.
Punkty zaporowe, które uzasadniałyby instalację szlabanu obrotowego o koszcie powyżej 8000 RM, nie występują w tym obszarze. Ponadto Sperrdienstruppe nie dysponuje środkami finansowymi na ten cel.
Odnosi się również do Wehrkreiskommando I, Abt. Stopi Nr 156/35 Tajne z dnia 20.3.35 - Kommandantur Elbląg Abt. Pi. Nr 74/35 Tajne z dnia 22.3.35.
[podpis]


[szlaban]
MRU. Szlaban z Ołoboku.

[szlaban]
MRU. Szlaban z Ołoboku.

[szlaban]
MRU. Szlaban z Ołoboku.

[szlaban]
MRU. Szlaban z Ołoboku.

[szlaban]
Pozycja Pomorska. Szlaban z Drawin.

[szlaban]
Pozycja Pomorska. Szlaban z Drawin.

[szlaban]
Pozycja Pomorska. Szlaban z Drawin.

[szlaban]
Pozycja Pomorska. Szlaban z Drawin.


Z biblioteczki niemieckiego sapera

Opis i instrukcja obsługi mechanicznej, obrotowej zapory drogowej do blokowania dróg
Załącznik 3 do O.K.H. Gen St d H In Fest (IIIb) Nr. 2200/37 Tajne z dnia 25.07.1937
Pochodzącą z BAMA instrukcję obrotowej zapory drogowej można w tłumaczeniu przeczytać -> TU.

Szlabany 1937

Śladem po dyskusji o zastosowaniu szlabanów obrotowych jest wymiana dokumentów z połowy 1937 roku w sprawie zainstalowania 16 sztuk takowych urządzeń na Pozycji Dzierzgońskiej. Niestety nie jest to pełna dokumentacja (pochodząca z NARA), ale wynika z niej, że ze strony władz centralnych Rzeszy pomysł ten został zablokowany z powodu wysokiego kosztu i możliwości osiągnięcia celu blokowania dróg innymi metodami, nie wykorzystującymi deficytowej i potrzebnej do innych celów w tym roku stali. A jako że i sama Pozycja Dzierzgońska nie powstała w formie umocnień betonowych, a później została skasowana, na pewno szlabany obrotowe nie zaistniały na terenie zachodu Prus Wschodnich.

Królewiec, dnia 10.08.1937.
Dowództwo I. Armeekorps (Wehrkreiskommando I) Abt. Pi. Nr. 694/37 Tajne.
Do 1. Division, 11. Division, 21.Division, Kdtr. d. Fest. Królewiec, Kdtr. d. Bef. b. Giżyckiem.
Załączone rozporządzenie do wiadomości i przestrzegania.
21. Dywizja ma zgłosić zapotrzebowanie na zapory obrotowe dla Pozycji Dzierzgońskiej i Olsztyneckiej.
Za Dowództwo Generalne Szef Sztabu Generalnego
Z up. i w zast. [podpis]
Za zgodność: [podpis] Kapitan (E)

Elbląg, dnia 16.08.1937.
21. Division Abt. Sp. Nr 209/37 Tajne. -Az.39 g 22 -
Odniesienie: Dowództwo I. Armee-Korps Pi. Nr 694/37 Tajne z 10.8.37.
Dotyczy: O.K.H. 39g21 Gen.st.d.H. 3450/37 Tajne z 4.8.37 Zapotrzebowanie na stal do celów zaporowych.
Do Festungs-Pionierstab 1, Królewiec
Zgodnie z ww. zarządzeniem O.K.H. do dnia 30.8.37 należy zgłosić przewidywane zapotrzebowanie na stal do celów zaporowych.
Zgodnie z ww. zarządzeniem Dowództwa I. Armee-Korps Dywizja ma podać zapotrzebowanie na zapory obrotowe dla Pozycji Dzierzgońskiej. Nawiązując do tamtejszego Nr 200/37 Ściśle Tajne z 12.5.37 oraz wniosku 21. Division Pi. Offz. Nr 69/37 Ściśle Tajne z 9.7.37 do Dowództwa I. Armee-Korps, prosi się o podanie zapotrzebowania do dnia 24.8.37, aby można było dotrzymać terminu wyznaczonego Dywizji przez Dowództwa I. Armee-Korps.
Wyżej wymieniony wniosek złożony przez Dywizję do Dowództwa I. Armee-Korps o zainstalowanie zapór z pali żelaznych zamiast zapór obrotowych nie został jeszcze rozpatrzony.
Z up. Pierwszy Oficer Sztabu Dywizji [podpis]


Królewiec, dnia 19.08.1937.
Festungs-Pionierstab 1 Nr. Dziennika 347/37 Ściśle Tajne.
Odniesienie: 21. Division Abt. Sp. Nr. 209/37 Tajne z 16.8.37. - Az. 39 g 22 -
Dotyczy: Zapotrzebowanie na stal do celów zaporowych.
Do 21. Division Abt. Sp. Elbląg.
Festungs-Pionierstab 1 proponuje zgłosić dla wyżej wymienionych celów:
400 mb dwuteowników
w tym 175 mb IP 36
225 mb IP 20.
Stosunkowo wysokie zapotrzebowanie wynika z tego, że w całej Pozycji Dzierzgońskiej przewidziano obecnie 16 punktów zaporowych i następuje rezygnacja z barier obrotowych. Dwuteowniki żelazne udostępnione pismem Festungs-Pionierstab 1 200/37 g. Kdos. z 12.5.37 ze stanu Festungs-Pionierstab będą prawdopodobnie potrzebne do innych celów, w związku z czym niniejszym zgłasza się pełne zapotrzebowanie.
[podpis]
Rozdzielnik:
1. egz. 21. Division
2. egz. Festungs-Pionierstab 1 (Projekt)


Elbląg, dnia 24.8.37.
21. Division Abt. Sp. Az. 39 g 22 Nr. 209/37 Tajne.
Odniesienie: Dowództwo I. Armee-Korps. Abt. Pi. Nr. 694/37 Tajne z 10.8.37. i 21. Division Pi. Offz. Nr. 69/37 Ściśle Tajne z 9.7.37.
Dotyczy: Bariery obrotowe dla Pozycji Dzierzgońskiej.
Do Dowództwa I. Armee-Korps.
Na podstawie powyższych dokumentów pozycja 2) Dywizja przedłożyła Dowództwu wniosek, aby na Pozycji Dzierzgońskiej, ze względu na niższe koszty, zainstalować zapory z żelaznych pali zamiast barier obrotowych. Nie zostało to jeszcze rozstrzygnięte.
Festungs-Pionierstab 1 informuje obecnie, że stal, którym dysponował w owym czasie, jest potrzebna do innych celów.
Dla 16 punktów zaporowych [Sperrstellen] przewidzianych na Pozycji Dzierzgońskiej, według informacji Festungs-Pionierstab 1, bariery obrotowe nie są przewidziane. Dywizja wyraża na to zgodę.
Jako zapotrzebowanie na stal na okres od 1.10.37 do 31.3.38 zgłasza się dla tych punktów zaporowych:
225 mb. dwuteownika stalowego NP 20
175 mb. dwuteownika stalowego NP 36
Z up. Pierwszy Oficer Sztabu Generalnego [podpis]


Komory minowe pod drogą

Ciekawy obiekt typy komora minowa pod jezdnią znajduje się pod Drogą Sudecką w Górach Bystrzyckich. Składa się z 3 kródkich chodników z 2 niszami po bokach, których wysadzenie miało spowodować osunięcie się skarpy drogi i jednego dłuższego, który oprócz 2 nisz koło wejścia, poterną prowadził do dużej izby pod jezdnią. Struktura ta była opisana chyba po raz pierwszy w artykule Marek Battek, Robert Jurga i Anna Kędryna, Hitlerowskie fortyfikacje Drogi Sudeckiej w Górach Bystrzyckich [w:] Karkonosz, 5, 1991 -> Pobierz artykuł. Brakującą w skanie wkładkę z rysunkami komór minowych można zobaczyć tu.
Podobnie rozbudowany zespół komór minowych zachował się na innym odcinku Drogi Sudeckiej, na Zakręcie Śmierci koło Szlarskiej Poręby. Jak obecnie wyglądają można zobaczyć na zdjęciach Jana Fedorowicza z blogu Architektura Znikająca.


[komora minowa]
Droga Sudecka. Skarpa zkomorami minowymi.

[komora minowa]
Droga Sudecka. Skarpa z komorami minowymi.

[komora minowa]
Droga Sudecka. Krótka komora minowa.

[komora minowa]
Droga Sudecka. Krótka komora minowa. Nisza minowa.

[komora minowa]
Droga Sudecka. Wejście do długiej komory z dwoma niszami po bokach.

[komora minowa]
Droga Sudecka. Poterna długiej komory do izby pod jezdnią.

[komora minowa]
Droga Sudecka. Poterna długiej komory do izby pod jezdnią.

[komora minowa]
Droga Sudecka. Blokada wejścia do izby pod jezdnią.

[komora minowa]
Droga Sudecka. Izba pod jezdnią.

Naczelne Dowództwo Wojsk Lądowych w marcu 1939 roku wydało dokument opisujący wnioski z ćwiczeń wojskowych dotyczących wysadzania dróg w 1938 roku. Podkreśla się w nim, że skuteczne blokowanie przeciwnika wymaga niszczenia mostów, urwisk, skalnych półek i nasypów. Szczegółowo omawia się techniki wysadzania stromych zboczy, wąwozów, nasypów i przepustów, zwracając uwagę na odpowiednie rozmieszczenie ładunków wybuchowych, aby maksymalnie utrudnić odbudowę dróg. Zaleca się również przygotowania inżynieryjne w czasie pokoju, w tym konsultacje z geologami, budowę murów oporowych oraz wcześniejsze przygotowanie materiałów do wysadzania.
"Oberkommando des Heeres B 39 g 10 AH A / In Fest VI 8200/38 tajne
Berlin, dnia 15.03.1939.
Tajne!
Odniesienie: H.Dv.220/4, pkt. 184-187, D 580 pkt. 204 i 205.
Temat: Doświadczenia z ćwiczeń budowy dróg w 1938 r. dotyczące wysadzania dróg.
Załączniki: 7 (zszyte).

I. Wnioski z ćwiczeń budowy dróg w 1938 roku
Ćwiczenia budowy dróg w 1938 roku na Szwabskiej Jurze dostarczyły doświadczeń dotyczących zamykania dróg poprzez wysadzanie, które powinny być uwzględniane przy pokojowych przygotowaniach do blokad.
Najważniejszym wnioskiem z tych ćwiczeń jest to, że istotne zatrzymanie przeciwnika można osiągnąć jedynie poprzez wysadzanie obiektów inżynieryjnych (mostów, przepraw rzecznych itp.), urwisk, skalnych półek i nasypów na terenach podmokłych. Wybór miejsc do wysadzenia w ciągach dróg wymaga zatem starannego i fachowego przygotowania.

II. Wysadzanie urwisk
1. Efektywność wysadzania urwisk zależy, oprócz kąta nachylenia zbocza, głównie od właściwości (twardości) i uwarstwienia skały (patrz pkt. 11). Należy uwzględnić, że część odrzuconego materiału opada z powrotem do krateru (patrz pkt. 7).
2. Układ ładunków zgodnie z rys. 1 (oraz H.Dv. 220/4 rys. 222, 224 i 225) wykazał, że ich działanie w głąb oraz na stronę górską było zgodne z oczekiwaniami.
Negatywnym efektem jest jednak powstający po stronie doliny krawędź krateru (patrz linia przerywana na rys. 1), która poprzez swoją podwyższoną pozycję w stosunku do dna krateru umożliwia jego łatwe sforsowanie i stosunkowo szybkie odbudowanie drogi.
3. Aby uniknąć tego efektu, należy przewidzieć dodatkowe ładunki zgodnie z rys. 2 i 3a, b.
Układ ładunków według rys. 3a i 3b prowadzi do pogłębienia krateru, co utrudnia lub wręcz uniemożliwia zastosowanie podpór (kozłów, stosów podkładów kolejowych itp.). Ze względu na duże zużycie materiałów wybuchowych, taki układ powinien być stosowany tylko w przypadku dróg o szczególnym znaczeniu.
4. Aby utrudnić przeciwnikowi budowę tymczasowych mostów nad kraterem, należy stworzyć w drodze jak największą wyrwę (minimum 40-50 m). Obszary oddziaływania ładunków powinny się stykać lub, najlepiej, nakładać na siebie w około 1/3.
Jeśli na podstawie charakterystyki terenu (uwarstwienie, rodzaj skały lub gleby) można przewidywać osuwanie się zbocza, to nakładanie się obszarów oddziaływania górnych głównych ładunków nie jest konieczne (patrz rys. 3b).
Nie jest również konieczne, aby obszary oddziaływania ładunków przecinały profil drogi i zbocza, ponieważ ich główne działanie skierowane jest w stronę najmniejszego oporu, czyli w stronę zbocza.
5. Obliczając siłę ładunków, należy przyjąć brak uszczelnienia, jednakże ich uszczelnienie jest konieczne, aby zapobiec wydmuchiwaniu ładunków z otworów.

III. Wysadzanie wąwozów i nasypów
6. Tworzenie kraterów w wąwozach nie zapewnia długotrwałej blokady, ponieważ wypełnienie ich ziemią ze zboczy można przeprowadzić w bardzo krótkim czasie. W przypadku wąwozów wykutych w skale, korzystniejsze może być utworzenie blokad skalnych (patrz D 580 E II).
7. W przypadku wysadzania nasypów oraz zboczy o mniejszym nachyleniu, układ ładunków zgodnie z H.Dv.220/4 rys. 227 i D 580 rys. 62 okazał się błędny, ponieważ kratery nawzajem się zasypują.
Obszary oddziaływania ładunków powinny być oddalone o co najmniej 2W (?).
Lepszy efekt blokujący osiąga się przez zastosowanie większych ładunków w większej odległości od siebie niż przez mniejsze ładunki rozmieszczone w układzie przesuniętym zgodnie z rys. 62 D 580, ponieważ pozostające fragmenty nasypu nie pomagają w odbudowie drogi.
Rys. 62 należy zastąpić załączonym rys. 4.

IV. Wysadzanie przepustów
8. W przypadku wysadzania mniejszych obiektów inżynieryjnych (przepustów) trwałą blokadę można osiągnąć poprzez zwiększenie ładunków za przyczółkami (patrz rys. 5), co prowadzi do powstania większych kraterów.
W szczególności w przypadku przepustów rzecznych, gdzie może dojść do ich zalania wodą, efekt blokujący jest wyjątkowo skuteczny.
Zatkanie przepustu przed wysadzeniem, tak aby całkowicie go wypełnić, może dodatkowo zwiększyć skuteczność blokady.
Zastosowanie ładunków na sklepieniu przepustu może być również korzystne (wymaga to wodoszczelnych pojemników na ładunki).
9. Efekt blokujący można zwiększyć poprzez rozmieszczenie dodatkowych ładunków przed i za przepustem (patrz ładunki 3 i 4 na rys. 5).

V. Przygotowania w czasie pokoju
10. Instalacja min w drogach na stromych zboczach będzie zazwyczaj przeprowadzana metodą górniczą. Zamiast drewnianych ram podtrzymujących, należy stosować ramy żelbetowe, np. typu Dywidag.
W innych przypadkach prostszą, tańszą i mniej czasochłonną metodą jest montaż rur minowych lub komór minowych od góry lub od strony drogi przez nacięcia w nawierzchni.
Jeżeli instalacja ładunków ma nastąpić dopiero w czasie mobilizacji, to w odpowiednich rodzajach gleby, np. w glinie, rury minowe można przygotować przy użyciu świdrów ziemnych.
Świdry i wodoszczelne pojemniki na ładunki powinny być przygotowane w czasie pokoju.
11. W przypadku budowy nowych dróg w terenach górskich należy w planach uwzględnić budowę murów oporowych w miejscach przewidywanych blokad, aby ułatwić wysadzanie drogi.
Kręte odcinki dróg są szczególnie dogodne do blokowania, ponieważ w takich miejscach instalacja wojskowych mostów tymczasowych, np. mostów K, jest niemożliwa lub bardzo trudna (przykład na rys. 6).
12. Przy planowaniu wysadzania dróg wskazane jest zaangażowanie geologów oraz ekspertów z miejscowych kamieniołomów, aby uzyskać dane na temat warunków geologicznych i rodzaju skał.
Skuteczność wysadzania jest w dużej mierze zależna od tych czynników.
13. Istniejące instalacje minowe (na zboczach i kraterowe) powinny zostać zweryfikowane i w razie potrzeby dostosowane do powyższych zaleceń."


[komora minowa]
[komora minowa]
[komora minowa]
[komora minowa]
[komora minowa]
[komora minowa]
[komora minowa]
Załączniki do dokumentu. (germandocsinrussia.org).

Jedyną znaną mi komorą minową planowaną do wykonania pod drogą na opisywanym terenie jest zapora (E.O.K.39/44a) w okolicy miejcowości Gurcz.
Zachował się rysunek z lokalizacją i kosztorys firmy Klostermann & Neumann, Tiefbau z Kwidzyna z 02.05.1936 roku z opisem prac do wykonanania, w którym napisano:
"Kosztorys dotyczący ułożenia rurociągu cementowego pod nawierzchnią drogi na odcinku Pastwa - Gurcz.
Zakres prac:
. Demontaż i ponowne ułożenie bruku poligonalnego po zasypaniu wykopu - koszt za 1 m2.
. Wykonanie wykopu o głębokości 1,0-3,5 m na całej długości rurociągu, ułożenie szczelnie dopasowanych rur cementowych o średnicy 80 cm, zamknięcie końca przepustu betonową płytą, montaż żeliwnej pokrywy zamykającej, zasypanie wykopu i jego zagęszczenie. Głowicę przepustu obsiać trawą maskującą, oznaczyć miejsce kamieniem - koszt za 1 metr bieżący.
. Wykonanie rowu drenażowego o średniej głębokości 3,5 m dla odwodnienia najniższego punktu przepustu O 80 cm, doprowadzenie wody do Nogatu, ułożenie rur drenarskich O 10 cm, dostawa rur, deskowanie, zasypanie wykopu i odwodnienie - koszt za 1 metr bieżący.
Wszystkie materiały budowlane w cenie, dostawa na plac budowy wliczona."
Całość prac wyceniono na 1475 RM. Nie wiadomo czy komora minowa pod drogą została wykonana, nie znalazłem dokumentów odbioru, a dziś nie widać w tym miejscu żadnych śladów po zaporze...

[mapa]
Plan usytułowania komory minowej. Na dwóch parach mostów przeznaczonych do wysadzenia w 1939 roku brak śladów komór minowych. (Podkład mapy - opentopomap.org).

[komora minowa]
Plan usytułowania komory minowej. (BAMA).

[komora minowa]
Kosztorys budowy komory minowej. (BAMA).

[komora minowa]
Współczesny widok.

[komora minowa]
Współczesny widok z miejscem lokalizacji komory minowej i domkiem w którym w 1936 roku był posterunek policji wiejskiej Landjägerhaus.

Wątłym śladem po innym planowanym tunelu pod drogą jest pismo dotyczące nowobudowanego mostu na kanale Juranda koło Pierzwałdu (53.94223388, 19.12470512).
Malbork, dnia 25.3.1935.
Kommandantur Elbląg, Abt. Pi. Zweigstelle Malbork Nr. 57/35 Poufne!
Projekt
Do Pana Przewodniczącego Wydziału Powiatowego w Sztumie.
W załączeniu, z podziękowaniem, zwracamy nadesłany projekt budowy żelbetowego mostu płytowo-belkowego nad kanałem Juranda w Pierzwałdzie. Biorąc pod uwagę niewielką rozpiętość, nie mamy zastrzeżeń co do jego wykonania.
Kładziemy jednak nacisk na inne możliwości zaporowe, a mianowicie poprzez wbudowanie rur cementowych w odcinkach grobli na drodze Pierzwałd - Ramty. W tej sprawie przedstawiciel Komendantury przybędzie w najbliższych dniach do Sztumu na konsultacje.
[Podpis]


Skrzynka minowa

Ciekawostką jest skrzynka minowa [Minenkästen], którego instrukcję "Broszura na temat instalacji skrzynek minowych na drogach" z 1933 r. dostałem w skanie od kolegi z zasobów BAMA. Zdawało by się, że to jeszcze jeden z wynalazków, który nie wszedł do użytku, ale...
Ze dwa lata temu dowiedziałem się, że kolega Elvis wypatrzył na blogu pewnego regionalisty, a później zbadał in situ dziwne struktury metalowe zachowane pod kostką jednej z dróg w okolicach Pozycji Trzcielskiej. Porównajcie zdjęcia współczesne ze zdjęciami z broszury.

[skrzynka minowa]

[skrzynka minowa]
Skrzynka minowa. Zdjęcia z 1933 r. i współczesna autorstwa Elvisa.

W piśmie z 11.11.1932 roku Komendantura w Wystruciu (Insterburgu) proponuje wbudowanie betonowych skrzyń w nawierzchnie dróg o twardej konstrukcji, aby umożliwić szybkie układanie min przeciwpiechotnych. Skrzynie te miałyby być stabilne, nie wpływać na płaskość drogi i być dyskretnie oznaczone. Planowano ich montaż podczas budowy lub remontu dróg w strategicznych miejscach.
Dowództwo Okręgu Wojskowego w Królewcu, w piśmie z 22.12.1932 roku, przedstawiło propozycje przygotowania w czasie pokoju specjalnych komór minowych pod nawierzchnią dróg w strategicznych miejscach. Celem było umożliwienie szybkiego rozmieszczenia min w razie konfliktu, aby przeciwdziałać przełamaniu linii przez zmotoryzowane siły przeciwnika. Wehrkreiskommando I. neguje użyteczność wykonywania komór minowych preferując skrzynki minowe.
W piśmie z 20.10.1933 roku, Wehrkreiskommando I. analizując technologie budowy dróg wskazuje, że najlepsza dla instalowania urządzeń minowych jest nawierzchnia z kostki bitumicznej. Taka konstrukcja pozwalałaby na tworzenie ukrytych komór minowych, umożliwiając usunięcie i ponowne wstawienie kostek bez widocznych śladów. Proponowało zbudowanie próbnego odcinka we współpracy z firmą Schichau z Elbląga, która posiada patent na tę technologię.

"Kommandantur Insterburg. Abt. Pi. Nr. 453/32 ściśle tajne.
Insterburg, dnia 11 listopada 1932 r.
Do 1. Divison - Wehrkreiskommando I. Królewiec.
Komendantura planuje w czasie pokoju przygotowanie do szybkiego układania min przeciwpiechotnych w nawierzchni dróg w następujący sposób:
W nawierzchniach dróg, które ze względu na swoją twardość i konstrukcję nie pozwalają na szybkie układanie min, mają zostać wbudowane betonowe skrzynie. Skrzynie te będą na tyle stabilne i solidnie osadzone, że płaskość nawierzchni drogi zostanie zachowana nawet przy intensywnym ruchu ciężkich pojazdów. Oznacza to, że wierzchnia warstwa nawierzchni drogi będzie przechodzić nad betonowymi skrzyniami. Lokalizacja tych skrzyń będzie możliwa jedynie poprzez dyskretne oznaczenie ich dokładnego położenia, co można osiągnąć poprzez umieszczenie charakterystycznych kamieni na poboczu drogi (por. Załącznik 2).
Montaż skrzyń jest przewidziany w przyszłości podczas budowy nowych dróg lub remontów w miejscach, gdzie taktyczne zastosowanie min przeciwpiechotnych jest uzasadnione i skuteczne.
Opis skrzyń: (por. Załącznik 1)
Skrzynia będzie wykonana z betonu ubijanego. Górna zewnętrzna krawędź zostanie wzmocniona kątownikiem o równych ramionach i grubości 40 mm. Skrzynia będzie przykryta blachą ryflowaną o grubości 3 mm, która będzie osadzona w ramie z kątownika, uniemożliwiając jej przesunięcie. Wnętrze skrzyni zostanie wypełnione betonowym blokiem z wbudowanym uchwytem pierścieniowym, aby zapobiec uszkodzeniom skrzyni spowodowanym przez ruch ciężkich pojazdów przejeżdżających nad nią. Dla ułatwienia obsługi, betonowy blok może składać się z dwóch części. Po umieszczeniu min przeciwpiechotnych, pokrywająca blacha ryflowana może służyć jako płyta naciskowa.
Montaż skrzyni:
W przypadku nawierzchni tłuczniowej na głębokości około 10 cm, a w przypadku dróg asfaltowych na głębokości około 6 cm poniżej górnej powierzchni nawierzchni. W przypadku brukowanych dróg montaż nie jest przewidziany, ponieważ miny przeciwpiechotne można szybko układać pod brukiem nawet bez wcześniejszych przygotowań w czasie pokoju.
Koszt jednej skrzyni:
Około 22 RM; przy większych zamówieniach cena może być niższa o 3-4 RM za sztukę.
Komendantura wnioskuje o przyznanie 100 RM na wykonanie 4 skrzyń próbnych.
Komendant.
podpisano: Braemer, generał major."

[skrzynka minowa]
Załącznik Nr1. (BAMA).

[skrzynka minowa]
Załącznik Nr2. (BAMA).

1. Division (Wehrkreiskommando I.) 359/32 Ściśle Tajne.
Królewiec, dnia 22.12.1932.
Dotyczy: Układanie min na drogach.
Do Szefa Heeresleitung - Wehr. A. In 5 Berlin
Dowództwo Okręgu Wojskowego uważa za ważne i pilne znalezienie rozwiązania umożliwiającego szybkie układanie min na drogach poprzez przygotowanie specjalnych komór minowych już w czasie pokoju, zwłaszcza w pobliżu granicy lub w strategicznych wąskich przejściach, w celu przeciwdziałania przełamaniu przez zmotoryzowane siły przeciwnika. Inspektor Saperów podczas tegorocznej wizyty zwrócił na to uwagę i wspomniał o planowanych w tym celu próbach.
Dowództwo Okręgu Wojskowego przedstawia dwie wstępne propozycje rozwiązania tego problemu i prosi o decyzję, czy powinny one zostać poddane praktycznym testom z udziałem Urzędu Uzbrojenia Wojsk Lądowych na poligonie saperskim w Klausdorf/Sperenberg, czy też powinny być dalej rozwijane przez Dowództwo Okręgu Wojskowego. W tym ostatnim przypadku potrzebne byłyby niewielkie środki finansowe - około 500 RM.
Stanowisko Dowództwa Okręgu Wojskowego wobec obu propozycji:
1. Komory minowe, jak sugeruje Insterburg, są wprawdzie oczywistym, ale niewystarczającym rozwiązaniem. Ich instalacja w razie potrzeby wymaga zbyt wiele czasu (usunięcie nawierzchni drogi). Ponadto są one równie trudne do ukrycia, jak miny układane bez wcześniejszego przygotowania. Natomiast ich maskowanie w czasie pokoju jest bardzo dobre.
Dowództwo Okręgu Wojskowego uważa, że bardziej odpowiednim rozwiązaniem byłoby zastosowanie niewielkiego kanału betonowego poprzecznie przez całą szerokość drogi, tuż pod jej nawierzchnią. Działałby on podobnie do prowizorycznej miny z desek naciskowych. Do tego potrzebny byłby: pokrywa naciskowa (z żelaza?), która w czasie pokoju musiałaby być chroniona przed uszkodzeniem przez podłożone betonowe bloki. Instalacja w razie potrzeby: odsłonięcie wejść poprzez usunięcie ziemi maskującej na skarpach bocznych rowów przydrożnych - usunięcie betonowych bloków - wsunięcie około 4 min (miny typu T lub prowizoryczne) z uzbrojonymi zapalnikami w przygotowane miejsca - lekkie uniesienie min za pomocą płaskiego klina, tak aby zapalniki lekko dotykały pokrywy naciskowej - zamaskowanie bocznych otworów ziemią.
2. Droga bitumiczna (propozycja W.O.) jest prawdopodobnie wartą rozwinięcia sugestią. Jedynie koszty wojskowe związane z budową dróg. Pod jej płytami można by wtedy zainstalować komory minowe, podobne do tych proponowanych przez Insterburg.
W obu przypadkach - szczegóły musiałyby zostać jeszcze zaprojektowane i przetestowane - instalacja min byłaby możliwa w krótkim czasie, a miejsce instalacji łatwe do ukrycia.
Szef Sztabu.


W.O. Nr.112/32 Ściśle Tajne.
Królewiec, dnia 20.10.1933.
Dotyczy: Dyskretne komory minowe na drogach w pobliżu granicy.
Do Stopi
W odniesieniu do powyższej sprawy, W.O. zasięgnęło informacji w różnych instytucjach na temat odpowiednich metod budowy dróg. Ustalono, że tylko jeden rodzaj konstrukcji drogowej wydaje się odpowiedni do tworzenia użytecznych komór minowych. Tradycyjne drogi utwardzone tłuczniem, jak również nowoczesne nawierzchnie z warstwą asfaltową, nie pozwalają na otwieranie i ponowne zamykanie bez pozostawienia łatwo rozpoznawalnych śladów. Natomiast nawierzchnia z kostki bitumicznej zapewnia pełną gwarancję na niezauważalne umieszczenie min.
Nawierzchnia bitumiczna składa się z prasowanych wapienno-piaskowych kostek, nasączonych rodzajem bitumu. Szczeliny między kostkami wypełniane są kruszywem z tej samej masy. Zewnętrznie nawierzchnia przypomina dobrze wykonaną, trwałą w każdych warunkach pogodowych, powierzchnię asfaltową. Można jednak wyjąć i ponownie wstawić niektóre kostki bitumiczne bez możliwości rozpoznania takiego miejsca przez osoby postronne.
Pierwotnie budowę takich dróg propagowała firma Konnick z Elbląga, która produkowała niezbędne maszyny. Po upadku firmy Konnick, przedsiębiorstwo Schichau G.m.b.H. z Elbląga nabyło to patent i w ostatnich latach uruchomiło różne fabryki produkujące kostki bitumiczne, m.in. w Berlinie, Brunszwiku, Paryżu, Lizbonie i Budapeszcie.
W Prusach Wschodnich takie kostki mogą być produkowane w Pilawie. Koszt takiej nawierzchni jest znacznie niższy niż asfaltu, ale wyższy niż tradycyjnej nawierzchni utwardzonej. Trwałość, jak pokazuje próbny odcinek w Berlinie na Alexanderplatz, jest nieograniczona.
Dla celów, o których mowa, w pobliżu granicy można by odcinkowo i nieregularnie stosować taką nawierzchnię. W celu przeprowadzenia testów można najpierw wykonać próbny odcinek. Zakłada się, że firma Schichau wykonałaby taki odcinek próbny całkowicie bezpłatnie lub za niewielką opłatą.
Podpisano: v. Brandenstein.

W piśmie Komendantury Malbork z 15.11.1933 roku zaproponowano 16 lokalizacji blokad z ukrytymi 5-6 sztukami skrzynek minowych.

Kommandantur Marienburg Abtlg. Pi. Tgb.Nr.147/33 Ściśle Tajne.
Malbork, 15.11.1933.
Dotyczy: Skrzynek minowych w drogach.
Odniesienie: 1. Div. Abtlg. Stopi. Nr 547/33 Tajne z dnia 19.09.1933.
Do: 1. Div. Abtlg. Stopi.
W nawiązaniu do powyższego zarządzenia proponuje się następujące lokalizacje do wbudowania skrzynek minowych:
1. (1.) Droga granica - Gardeja - Kwidzyn, na rozwidleniu dróg na północnym wylocie z Gardeji = 6 skrzynek minowych
2. (2.) Droga granica - Biskupiczki - Kisielice, 100 m na południowy zachód od mostu na rzece Gardenga przy Albrechtsthal = 6 skrzynek minowych
3. (4.) Droga Szepierzyzna - Iława - Susz, 500 m na północ od rozwidlenia, gdzie jezioro Jeziorak styka się z drogą w lesie = 6 skrzynek minowych
4. (5.) Droga Radomno - Iława, 500 m na północ od leśnictwa Katarzynki przy północno-zachodnim krańcu jeziora Czerwone Katarzynki = 5 skrzynek minowych
5. (6.) Droga Rodzone - Iława, w lesie 800 m na południowy wschód od Grünkrug i na wschód od jeziora Zielone = 6 skrzynek minowych
6. (11.) Droga Cypel Mątawski - Sztum, bezpośrednio na wschód od zakrętu na wschodnim wylocie wsi Biała Góra = 5 skrzynek minowych
7. (12.) Droga Nowe Lignowy - Szkadrowo Szlacheckie - Ryjewo, 100 m na zachód od skrzyżowania z drogą Benowo - Mątawskie Pastwiska = 6 skrzynek minowych
8. (13.) Droga Nowe Lignowy - Gurcz, na wschód od mostu w Gurczu = 5 skrzynek minowych
9. (7.) Droga granica - Okrągła Łąka - Sadlinki - Kwidzyn, w wykopie około 2 km na południowy zachód od Sadlinek = 5 skrzynek minowych
10. (8.) Skrzyżowanie dróg Mastweg + Franzosenweg, w lesie Kwidzyńskim = 10 skrzynek minowych
11. (9.) Droga Czarne Dolne - Rosajny - Krzykosy - Kwidzyn, w wykopie 300 m na północ od północnego wylotu Czarne Dolne = 5 skrzynek minowych
12. (10.) Droga granica Pawłowo - Trumieje, bezpośrednio na południe od przejazdu kolejowego przy stacji Wilkowo, przy wlocie drogi do zabudowań stacyjnych = 6 skrzynek minowych
13. (3.) Droga Biskupiec - Trupel - Jędrychowo, 300 m na południowy zachód od jeziora Trupel, w wykopie = 5 skrzynek minowych
14. (14.) Droga Korzeniewo - Kwidzyn, na zachód od mostu drogowego, 1,3 km na północny zachód od Kwidzyn = 6 skrzynek minowych leśne
15. (15.) Droga Kisielice - Turmieje - Kwidzyn, na wysokości kanału łączącego jeziora Kucki i Leśne w lesie Neudörfchener Forst = 6 skrzynek minowych
16. (16.) Droga Gulb - Laseczno - Ząbrowo, na południe od kanału łączącego jeziora Ząbrowskie i Szymborskie, 200 m na zachód od zamku Szymbark = 5 skrzynek minowych
Łącznie: 93 skrzynki minowe
Poszczególne lokalizacje są uszeregowane według pilności. [w nawiasach zmieniona ołówkiem kolejmość]
Nie proponuje się zmian w nawierzchni dróg, ponieważ według opinii dowództwa nagła zmiana struktury nawierzchni mogłaby wzbudzić podejrzenia przeciwnika.
Przy wyborze lokalizacji uwzględniono, że miejsca te wykazują różne rodzaje konstrukcji drogowych.
Średnie koszty instalacji skrzynek minowych wyniosą około 5,00 RM za jedną skrzynkę.


[mapa]
Mapa planowanego rozmieszczenia skrzynkek minowych według dokumentu z 1933 roku. (Podkład mapy - opentopomap.org). (BAMA)

W piśmie Komendantury Malbork z 14.09.1934 roku ograniczono liczbę miejsc do 13, jednocześnie zwiększając liczbę skrzynek do 8-12 sztuk na blokadę.

[mapa]
Mapa planowanego rozmieszczenia skrzynkek minowych według dokumentu z 1934 roku. (Podkład mapy - opentopomap.org). (BAMA)

W liście Wehrkreiskommando I Abt. Stopi 314/34 ściśle tajne z 27.11.1934 roku informuję Komendanturę Malbork, że z 320 dostępnych szkrzynek minowych przekazuje im 50 sztuk, które należy zamontować na głównych drogach w pobliżu granicy. Na montaż jednej skrzynki przeznaczono 20 RM. Dano czas na instalację do 01.05.1935 roku.
Oddział Pionierów z Malborka pismem Nr. 310/34 tajne z 28.12.1934 roku ostateczne określił liczbę blokad na sześć.
Razem wykorzystano 49 skrzynek, jedną przesłano do Kommandantur Elbing, Pi. Zweigstelle Marienburg na cele próbne. Skrzynki zostałe wysłane do Malborka z Królewca w dniu 06.01.1935 roku.

Pi. - Zweigstelle Marienburg Nr. 310/34 Tajne.
Malbork, 28.12.1934.
Dotyczy: Montaż skrzyń minowych na drogach.
Odniesienie: 1. Div. Abflg. Stopi. Nr 547/33 tajne z dnia 19.09.1933.
Do Komendantury Marienburg. Wydział Pi.
Ostateczne plany montażu skrzyń minowych na drogach są następujące:
1) Droga granica - Okrągła Łąka - Sadlinki - Kwidzyn, na skrzyżowaniu z linią kolejową Gardeja - Kwidzyn w Sadlinkach, między rozwidleniem drogi a przejazdem kolejowym = 8 skrzyń minowych
2) Droga granica - Gardeja - Kwidzyn, w Gardeji, wyjazd na południe = 8 skrzyń minowych
3) Droga granica - Pawłowo - Trumieje, tuż na południe od przejazdu kolejowego przy stacji Wilkowo, na wjeździe drogi Butowo - stacja Wilkowo = 9 skrzyń minowych
4) Droga graniczna - Biskupiczki - Kisielice, 100 m na południowy zachód od mostu na Gardędze przy Albrechtfeld = 8 skrzyń minowych
5) Droga graniczna - Biskupiec - Piotrowice - Kisielice, 600 m na południe od rozwidlenia drogi Biskupiec - Kisielice/Jędrychowo, km 7,6 - 7,7 = 8 skrzyń minowych
6) Droga Iława - Susz, 1,5 km na północny zachód od Szymbark, na wysokości punktu 108. = 8 skrzyń minowych.


[mapa]
Mapa ostatecznego rozmieszczenia skrzynkek minowych według dokumentu z końca 1934 roku. (Podkład mapy - opentopomap.org). (BAMA)

Na przełomie 1935 i 1936 roku osiem sztuk skrzynek minowych zainstalowano między km 7,6 a 7,7 drogi Kisielice - Biskupiec. Nie znam niemieckiego kilometrażu, ale miejsce to leżało ok. 500 m na południe od później wybudowanego schronu MG-Schrtenstand. W 1936 droga miała nawierzchnię żwirową, aktualnie droga jest pokryta asfaltem i pewnie nie ma po skrzynakach śladu.
Dowodem jest zachowany rysunek i rachunek z 14.01.1936 roku z opisem wykonanych prac, w którym napisano:
"8 sztuk żeliwnych skrzynek minerskich do dróg, dostarczonych przez pana mistrza budowlanego Sternberga z Kisielic, zabrano na miejsce montażu. Skrzynki z blachy cynkowej pozostawiono w Kisielicach. Żeliwne skrzynki wmontowano pod nawierzchnię drogi: 3 sztuki w drodze sezonowej (letniej), 5 sztuk pod utwardzoną kruszywem nawierzchnią. Żeliwne skrzynki wypełniono piaskiem. Do oznaczenia dostarczono 8 surowych kamieni polnych o wymiarach ok. 15 × 20 × 65 cm, które ustawiono, zaopatrjąc je na odwrocie w wyryty wzór (o długości 10 cm i szerokości 1 cm). W zakres prac włączono także dostawę piasku oraz wszystkie prace dodatkowe."

[skrzynka minowa]
[skrzynka minowa]
Plan rozmieszczenia skrzynkek minowych na drodze Kisielice - Biskupiec. (BAMA).

[mapa]
Plan rozmieszczenia skrzynkek minowych na drodze Kisielice - Biskupiec. (BAMA).Powiększ mapę

[zapora minowa]
Przybliżona lokalizacja skrzynkek minowych na drodze DK16.

Na wszystkich sześciu miejscach gdzie w 1936 roku zainstalowano skrzynki minowe drogi mają aktualnie nawierzchnie asfatową, nie ma co szukać śladów.

Aktualizacja: 11.08.2025

Autor: hege22, Elvis

 |   Do góry  |   Poziom wyżej  |   Strona poprzednia  |   Strona następna  |   Spis treści  |